Aste di captazione telescopiche indipendenti fino a 8 m

Aste di captazione indipendenti, con tripode o quadripode pieghevole per la protezione di grandi strutture installate sul tetto e adattamento all'inclinazione del tetto fino a max 10°.

Lo zoccolo in cemento sovrapponibile (peso 17 kg / art. n. 102 010) e la piastra di base (art. n. 102 050) sono da ordinare separatamente.

Avvertenza: è necessario rispettare la capacità di carico del tetto ed eventualmente chiarire con il costruttore.

Con stativo Fe/tZn

3 Prodotti

Art. 105711 FS T D40 1.5 5.2M AL DBS RA560 STTZN

GTIN (EAN) 4013364500976, Codice doganale (EU): 85389099, Peso lordo: 13.79 kg, UM: 1.00 pz.


Immagini

Maggior informazioni

Asta di captazione indipendente, altezza 5200 mm
Aste di captazione telescopiche indipendenti
con tripode pieghevole
per la protezione di grandi strutture installate su tetto
con adattamento all'inclinazione del tetto fino a max. 10 gradi
Le aste di captazione sono dimensionate secondo l’Eurocodice 1
(UNI EN 1991-1-4 + UNI EN 1991-1-4/NA).
dimensionata per una velocità delle raffiche di vento
da 149 km/h a 183 km/h
a seconda dell’estensione della punta di captazione e della quantità di zoccoli in cemento
per il montaggio con zoccoli in cemento (peso 17 kg)
Zoccolo in cemento sovrapponibile (art. n. 102 010)
Piastra di base (art. n. 102 050)
sono da ordinare separatamente
Altezza: 5200 mm
Raggio: 560 mm
Ingombro supporto: 1210 x 1340 mm
Materiale del supporto: Fe/tZn
Materiale del palo di captazione: Al

Fabbricato: DEHN
Tipo: FS T D40 1.5 5.2M AL DBS RA560 STTZN
Art.: 105711
o similare.

Certificati

 

Caratteristiche tecniche

Altezza 5200 mm
Punta di captazione (Ø lunghezza) 10-1000 mm
Palo di captazione (Ø lunghezza) 40/30/20-4200 mm
Raggio 560 mm
Ingombro supporto 1210 x 1340 mm
Materiale del supporto Fe/tZn
Materiale del palo di captazione Al
Riferimento normativo DIN EN 62561-(1+2)

Prodotto 105711 è stato aggiunto al blocco note.

Prodotto 105711 è stato aggiunto al carrello.

Apri Web-Shop

Art. 105713 FS T D50 1.6 6.5M AL DBS RA1435 STTZN

GTIN (EAN) 4013364501041, Codice doganale (EU): 85389099, Peso lordo: 26.32 kg, UM: 1.00 pz.


Immagini

Maggior informazioni

Asta di captazione indipendente, altezza 6500 mm
Aste di captazione telescopiche indipendenti
con puntone e tripode pieghevole
per la protezione di grandi strutture installate su tetto
con adattamento all'inclinazione del tetto fino a max. 10 gradi
Le aste di captazione sono dimensionate secondo l’Eurocodice 1
(UNI EN 1991-1-4 + UNI EN 1991-1-4/NA).
dimensionata per una velocità delle raffiche di vento
da 149 km/h a 189 km/h
a seconda dell’estensione della punta di captazione e della quantità di zoccoli in cemento
per il montaggio con zoccoli in cemento (peso 17 kg)
Zoccolo in cemento sovrapponibile (art. n. 102 010)
Piastra di base (art. n. 102 050)
sono da ordinare separatamente
Altezza: 6500 mm
Raggio: 1435 mm
Ingombro supporto: 2850 x 2530 mm
Materiale del supporto: Fe/tZn
Materiale del palo di captazione: Al

Fabbricato: DEHN
Tipo: FS T D50 1.6 6.5M AL DBS RA1435 STTZN
Art.: 105713
o similare.

Certificati

 

Caratteristiche tecniche

Altezza 6500 mm
Punta di captazione (Ø lunghezza) 10-1000 mm
Palo di captazione (Ø lunghezza) 50/40/30/20-5500 mm
Raggio 1435 mm
Ingombro supporto 2850 x 2530 mm
Materiale del supporto Fe/tZn
Materiale del palo di captazione Al
Riferimento normativo DIN EN 62561-(1+2)

Prodotto 105713 è stato aggiunto al blocco note.

Prodotto 105713 è stato aggiunto al carrello.

Apri Web-Shop

Art. 105716 FS T D50 1.8 8.0M AL DBS RA1435 STTZN

GTIN (EAN) 4013364501072, Codice doganale (EU): 85389099, Peso lordo: 29.28 kg, UM: 1.00 pz.


Immagini

Maggior informazioni

Asta di captazione indipendente, altezza 8000 mm
Aste di captazione telescopiche indipendenti
con puntone e tripode pieghevole
per la protezione di grandi strutture installate su tetto
con adattamento all'inclinazione del tetto fino a max. 10 gradi.
Le aste di captazione sono dimensionate secondo l’Eurocodice 1
(UNI EN 1991-1-4 + UNI EN 1991-1-4/NA).
dimensionata per una velocità delle raffiche di vento
da 147 km/h a 149 km/h
a seconda dell’estensione della punta di captazione e della quantità di zoccoli in cemento
per il montaggio con zoccoli in cemento (peso 17 kg)
Zoccolo in cemento sovrapponibile (art. n. 102 010)
Piastra di base (art. n. 102 050)
sono da ordinare separatamente
Altezza: 8000 mm
Raggio: 1435 mm
Ingombro supporto: 2850 x 2530 mm
Materiale del supporto: Fe/tZn
Materiale del palo di captazione: Al

Fabbricato: DEHN
Tipo: FS T D50 1.8 8.0M AL DBS RA1435 STTZN
Art.: 105716
o similare.

Certificati

 

Caratteristiche tecniche

Altezza 8000 mm
Punta di captazione (Ø lunghezza) 10-1000 mm
Palo di captazione (Ø lunghezza) 50/60/50/40/30/20-7000 mm
Raggio 1435 mm
Ingombro supporto 2850 x 2530 mm
Materiale del supporto Fe/tZn
Materiale del palo di captazione Al
Riferimento normativo DIN EN 62561-(1+2)

Prodotto 105716 è stato aggiunto al blocco note.

Prodotto 105716 è stato aggiunto al carrello.

Apri Web-Shop

Con stativo in acciaio inox

4 Prodotti

Art. 105710 FS T D40 1.5 5.2M AL DBS RA680 V2A

GTIN (EAN) 4013364500969, Codice doganale (EU): 85389099, Peso lordo: 12.58 kg, UM: 1.00 pz.


Immagini

Maggior informazioni

Asta di captazione indipendente, altezza 5200 mm
Aste di captazione telescopiche indipendenti
con tripode piccolo in acciaio inox (versione pieghevole)
per la protezione di grandi strutture installate su tetto
con set adattatore per la conversione del diametro da D50 a D40 mm
Compensazione dell’angolo di inclinazione del tetto fino a max 10°
Le aste di captazione sono dimensionate secondo l’Eurocodice 1
(UNI EN 1991-1-4 + UNI EN 1991-1-4/NA).
dimensionata per una velocità delle raffiche di vento
da 149 km/h a 191 km/h
a seconda dell’estensione della punta di captazione e della quantità di zoccoli in cemento
per il montaggio con zoccoli in cemento (peso 17 kg)
Set di supporto per lo zoccolo (art. n. 107 396)
Zoccolo in cemento sovrapponibile (art. n. 102 010)
Piastra di base (art. n. 102 050)
sono da ordinare separatamente
Altezza: 5200 mm
Raggio: 680 mm
Ingombro supporto: 1400 x 1600 mm
Materiale del supporto: INOX
Materiale del palo di captazione: Al

Fabbricato: DEHN
Tipo: FS T D40 1.5 5.2M AL DBS RA680 V2A
Art.: 105710
o similare.

 

Caratteristiche tecniche

Altezza 5200 mm
Punta di captazione (Ø lunghezza) 10-1000 mm
Palo di captazione (Ø lunghezza) 40/30/20-4200 mm
Raggio 680 mm
Ingombro supporto 1400 x 1600 mm
Materiale del supporto INOX
Materiale del palo di captazione Al
Riferimento normativo DIN EN 62561-(1+2)

Prodotto 105710 è stato aggiunto al blocco note.

Prodotto 105710 è stato aggiunto al carrello.

Apri Web-Shop

Art. 105712 FS T D50 1.6 6.5M AL VBS RA680 V2A

GTIN (EAN) 4013364500983, Codice doganale (EU): 85389099, Peso lordo: 16.77 kg, UM: 1.00 pz.


Immagini

Maggior informazioni

Asta di captazione indipendente, altezza 6500 mm
Aste di captazione telescopiche indipendenti
con quadripode piccolo in acciaio inox (versione pieghevole)
per la protezione di grandi strutture installate su tetto
Compensazione dell’angolo di inclinazione del tetto fino a max 10°
Le aste di captazione sono dimensionate secondo l’Eurocodice 1
(UNI EN 1991-1-4 + UNI EN 1991-1-4/NA).
dimensionata per una velocità delle raffiche di vento
da 149 km/h a 189 km/h
a seconda dell’estensione della punta di captazione e della quantità di zoccoli in cemento
per il montaggio con zoccoli in cemento (peso 17 kg)
Set di supporto per lo zoccolo (art. n. 107 396)
Zoccolo in cemento sovrapponibile (art. n. 102 010)
Piastra di base (art. n. 102 050)
sono da ordinare separatamente
Altezza: 6500 mm
Raggio: 680 mm
Ingombro supporto: 1400 x 1400 mm
Materiale del supporto: INOX
Materiale del palo di captazione: Al

Fabbricato: DEHN
Tipo: FS T D50 1.6 6.5M AL VBS RA680 V2A
Art.: 105712
o similare.

 

Caratteristiche tecniche

Altezza 6500 mm
Punta di captazione (Ø lunghezza) 10-1000 mm
Palo di captazione (Ø lunghezza) 50/40/30/20-5500 mm
Raggio 680 mm
Ingombro supporto 1400 x 1400 mm
Materiale del supporto INOX
Materiale del palo di captazione Al
Riferimento normativo DIN EN 62561-(1+2)

Prodotto 105712 è stato aggiunto al blocco note.

Prodotto 105712 è stato aggiunto al carrello.

Apri Web-Shop

Art. 105714 FS T D50 1.8 8.0M AL VBS RA680 V2A

GTIN (EAN) 4013364501058, Codice doganale (EU): 85389099, Peso lordo: 19.95 kg, UM: 1.00 pz.


Immagini

Maggior informazioni

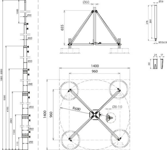
Asta di captazione indipendente, altezza 8000 mm
Aste di captazione telescopiche indipendenti
con quadripode piccolo in acciaio inox (versione pieghevole)
per la protezione di grandi strutture installate su tetto
Compensazione dell’angolo di inclinazione del tetto fino a max 10°
Le aste di captazione sono dimensionate secondo l’Eurocodice 1
(UNI EN 1991-1-4 + UNI EN 1991-1-4/NA).
dimensionata per una velocità delle raffiche di vento
da 140 km/h a 150 km/h
a seconda dell’estensione della punta di captazione e della quantità di zoccoli in cemento
per il montaggio con zoccoli in cemento (peso 17 kg)
Set di supporto per lo zoccolo (art. n. 107 396)
Zoccolo in cemento sovrapponibile (art. n. 102 010)
Piastra di base (art. n. 102 050)
sono da ordinare separatamente
Altezza: 8000 mm
Raggio: 680 mm
Ingombro supporto: 1400 x 1400 mm
Materiale del supporto: INOX
Materiale del palo di captazione: Al

Fabbricato: DEHN
Tipo: FS T D50 1.8 8.0M AL VBS RA680 V2A
Art.: 105714
o similare.

 

Caratteristiche tecniche

Altezza 8000 mm
Punta di captazione (Ø lunghezza) 10-1000 mm
Palo di captazione (Ø lunghezza) 50/60/50/40/30/20-7000 mm
Raggio 680 mm
Ingombro supporto 1400 x 1400 mm
Materiale del supporto INOX
Materiale del palo di captazione Al
Riferimento normativo DIN EN 62561-(1+2)

Prodotto 105714 è stato aggiunto al blocco note.

Prodotto 105714 è stato aggiunto al carrello.

Apri Web-Shop

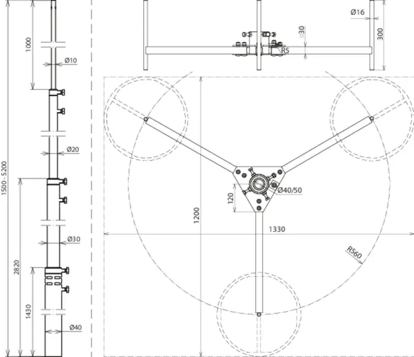
Art. 105715 FS T D50 1.8 8.0M AL VBS RA1330 V2A

GTIN (EAN) 4013364501065, Codice doganale (EU): 85389099, Peso lordo: 30.45 kg, UM: 1.00 pz.


Immagini

Maggior informazioni

Asta di captazione indipendente, altezza 8000 mm
Aste di captazione telescopiche indipendenti
con quadripode grande in acciaio inox (versione pieghevole)
per la protezione di grandi strutture installate su tetto
Compensazione dell’angolo di inclinazione del tetto fino a max 10°
Le aste di captazione sono dimensionate secondo l’Eurocodice 1
(UNI EN 1991-1-4 + UNI EN 1991-1-4/NA).
dimensionata per una velocità delle raffiche di vento
da 155 km/h a 170 km/h
a seconda dell’estensione della punta di captazione e della quantità di zoccoli in cemento
per il montaggio con zoccoli in cemento (peso 17 kg)
Set di supporto per lo zoccolo (art. n. 107 396)
Zoccolo in cemento sovrapponibile (art. n. 102 010)
Piastra di base (art. n. 102 050)
sono da ordinare separatamente
Altezza: 8000 mm
Raggio: 1330 mm
Ingombro supporto: 2300 x 2300 mm
Materiale del supporto: INOX
Materiale del palo di captazione: Al

Fabbricato: DEHN
Tipo: FS T D50 1.8 8.0M AL VBS RA1330 V2A
Art.: 105715
o similare.

 

Caratteristiche tecniche

Altezza 8000 mm
Punta di captazione (Ø lunghezza) 10-1000 mm
Palo di captazione (Ø lunghezza) 50/60/50/40/30/20-7000 mm
Raggio 1330 mm
Ingombro supporto 2300 x 2300 mm
Materiale del supporto INOX
Materiale del palo di captazione Al
Riferimento normativo DIN EN 62561-(1+2)

Prodotto 105715 è stato aggiunto al blocco note.

Prodotto 105715 è stato aggiunto al carrello.

Apri Web-Shop

back to top