Nastro di dilatazione per dispersori nelle fondamenta

Nastro di dilatazione per il passaggio del dispersore nelle fondamenta estese (più segmenti) tramite le fughe di dilatazione/separazione, senza dover far uscire il dispersore dal plinto di fondazione.

Il nastro di dilatazione viene incementato nel plinto di fondazione in modo tale, che il blocco di polistirolo si trovi in un segmento e l'altro lato possa essere portato avanti nel prossimo segmento.

1 Prodotto

Art. 308150 DB 700X30X4 V2A

GTIN (EAN) 4013364106970, Codice doganale (EU): 85359000, Peso lordo: 682.00 g, UM: 1.00 pz.


Immagini

Maggior informazioni

Nastro di dilatazione per dispersori di fondazione in acciaio inossidabile
Nastro di dilatazione per dispersori di fondazione per il passaggio
del dispersore per ferri d’armatura nelle fondamenta estese
(più segmenti) tramite le fughe di dilatazione o
di separazione, senza dover far uscire
il dispersore dal plinto di fondazione.

Materiale nastro: INOX
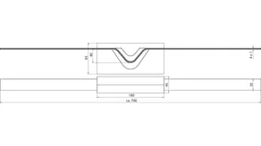
Dimensioni nastro: ca. 700 x 30 x (4 x 1) mm
Max estensione: +15 mm / -30 mm
Sezione: 120 mm2
Materiale blocco: polistirolo
Corrente di corto circuito (AC 50 Hz / DC): 6 kA

Fabbricato: DEHN
Tipo: DB 700X30X4 V2A
Art.: 308150
o similare.

Certificati

 

Caratteristiche tecniche

Materiale nastro INOX
Dimensioni nastro (lu x la x sp) ca. 700 x 30 x (4 x 1) mm
Sezione 120 mm2
Materiale blocco polistirolo
Dimensioni blocco (lu x la x sp) 180 x 85 x 45 mm
Corrente di corto circuito (AC 50 Hz / DC) (1 s; ≤ 300 °C) 6 kA

Prodotto 308150 è stato aggiunto al blocco note.

Prodotto 308150 è stato aggiunto al carrello.

Apri Web-Shop

back to top