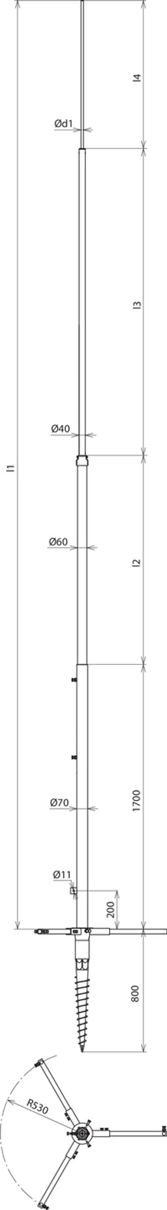
Palo componibile di captazione con fondazione filettata

Palo di captazione per la protezione da fulminazione diretta di impianti particolari, come ad es. impianti di biogas, impianti fotovoltaici a terra, ecc.
I pali vengono innalzati installandoli nella fondazione a vite.
Non sono necessari lavori né di scavo né di realizzazione di fondazioni.
La fondazione a vite va semplicemente avvitata nel terreno senza particolari lavori preparatori e va poi ulteriormente fissata con dispersori di profondità.

Per l’ulteriore fissaggio sono necessari 3 dispersori di profondità Ø 20 mm lunghi 1500 mm (art. n. 620 151) per ciascuna fondazione a vite. Questi ultimi sono da ordinare separatamente.

I pali di captazione sono dimensionati conformi all’Eurocode 1 (DIN EN 1991-1-4 + DIN EN 1991-1-4/NA).
Questi calcoli sono basati su una pressione del terreno di 0,02 kN/cm2 (ad es. terreno argilloso, sabbioso, ghiaioso a media densità).

Componenti:
– palo di captazione in Fe/tZn e Al rastremato, Ø70 / 60 / 40 mm
– asta di captazione in Al Ø 22/16/10 mm lunghezza 2500 mm o INOX Ø 10 mm lunghezza 1000 mm
– fondazione a vite Fe/tZn, lunghezza 800 mm con montanti lunghi 530 mm e viti di bloccaggio M10 con controdado
– bandiera di messa a terra con foro Ø 11 mm

Vantaggi:
– facile messa in opera grazie alla struttura rastremata in Fe/tZn e alluminio
– in caso di necessità, il palo di captazione può essere facilmente estratto dalla fondazione a vite e appoggiato sul terreno

Palo componibile di captazione con fondazione filettata

6 Prodotti

Art. 103121 TBM 6M SCFU STTZN AL

GTIN (EAN) 4013364112711, Codice doganale (EU): 85389099, Peso lordo: 33.00 kg, UM: 1.00 pz.


Immagini

Maggior informazioni

Palo di captazione componibile con fondazione a vite, altezza 6000 mm
Palo di captazione componibile con fondazione a vite
per la protezione da fulminazione diretta di
impianti particolari, come ad es. impianti di biogas, impianti fotovoltaici a terra, ecc.
Non sono necessari lavori né di scavo né di realizzazione di fondazioni.
La fondazione a vite va semplicemente
avvitata nel terreno senza particolari lavori preparatori
e va poi ulteriormente fissata con dispersori di profondità.
Per l’ulteriore fissaggio sono necessari
3 dispersori di profondità Ø 20 mm lunghi
1500 mm (art. n. 620 151) per ciascuna fondazione a vite (sono da ordinare separatamente).
I pali di captazione componibili con fondazione a vite sono dimensionati secondo
Eurocode 1 (DIN EN 1991-1-4 + DIN EN 1991-1-4/NA) per una
velocità delle raffiche di vento non superiore a 229 km/h.
Materiale: Fe/tZn / Al / INOX
Altezza sopra terra: 6000 mm
Riferimento norma: CEI EN 62561-(1+2)

Fabbricato: DEHN
Tipo: TBM 6M SCFU STTZN AL
Art.: 103121
o similare.

Certificati

 

Caratteristiche tecniche

Materiale Fe/tZn / Al / INOX
Altezza sopra terra (l1) 6000 mm
Max. velocità delle raffiche di vento 229 km/h
Riferimento norma CEI EN 62561-(1+2)

Prodotto 103121 è stato aggiunto al blocco note.

Prodotto 103121 è stato aggiunto al carrello.

Apri Web-Shop

Art. 103122 TBM 7M SCFU STTZN AL

GTIN (EAN) 4013364112728, Codice doganale (EU): 85389099, Peso lordo: 33.20 kg, UM: 1.00 pz.


Immagini

Maggior informazioni

Palo di captazione componibile con fondazione a vite, altezza 7000 mm
Palo di captazione componibile con fondazione a vite
per la protezione da fulminazione diretta di
impianti particolari, come ad es. impianti di biogas, impianti fotovoltaici a terra, ecc.
Non sono necessari lavori né di scavo né di realizzazione di fondazioni.
La fondazione a vite va semplicemente
avvitata nel terreno senza particolari lavori preparatori
e va poi ulteriormente fissata con dispersori di profondità.
Per l’ulteriore fissaggio sono necessari
3 dispersori di profondità Ø 20 mm lunghi
1500 mm (art. n. 620 151) per ciascuna fondazione a vite (sono da ordinare separatamente).
I pali di captazione componibili con fondazione a vite sono dimensionati secondo
Eurocode 1 (DIN EN 1991-1-4 + DIN EN 1991-1-4/NA) per una
velocità delle raffiche di vento non superiore a 185 km/h.
Materiale: Fe/tZn / Al
Altezza sopra terra: 7000 mm
Riferimento norma: CEI EN 62561-(1+2)

Fabbricato: DEHN
Tipo: TBM 7M SCFU STTZN AL
Art.: 103122
o similare.

Certificati

 

Caratteristiche tecniche

Materiale Fe/tZn / Al
Altezza sopra terra (l1) 7000 mm
Max. velocità delle raffiche di vento 185 km/h
Riferimento norma CEI EN 62561-(1+2)

Prodotto 103122 è stato aggiunto al blocco note.

Prodotto 103122 è stato aggiunto al carrello.

Apri Web-Shop

Art. 103123 TBM 8M SCFU STTZN AL

GTIN (EAN) 4013364112735, Codice doganale (EU): 85389099, Peso lordo: 37.60 kg, UM: 1.00 pz.


Immagini

Maggior informazioni

Palo di captazione componibile con fondazione a vite, altezza 8000 mm
Palo di captazione componibile con fondazione a vite
per la protezione da fulminazione diretta di
impianti particolari, come ad es. impianti di biogas, impianti fotovoltaici a terra, ecc.
Non sono necessari lavori né di scavo né di realizzazione di fondazioni.
La fondazione a vite va semplicemente
avvitata nel terreno senza particolari lavori preparatori
e va poi ulteriormente fissata con dispersori di profondità.
Per l’ulteriore fissaggio sono necessari
3 dispersori di profondità Ø 20 mm lunghi
1500 mm (art. n. 620 151) per ciascuna fondazione a vite (sono da ordinare separatamente).
I pali di captazione componibili con fondazione a vite sono dimensionati secondo
Eurocode 1 (DIN EN 1991-1-4 + DIN EN 1991-1-4/NA) per una
velocità delle raffiche di vento non superiore a 177 km/h.
Materiale: Fe/tZn / Al / INOX
Altezza sopra terra: 8000 mm
Riferimento norma: CEI EN 62561-(1+2)

Fabbricato: DEHN
Tipo: TBM 8M SCFU STTZN AL
Art.: 103123
o similare.

Certificati

 

Caratteristiche tecniche

Materiale Fe/tZn / Al / INOX
Altezza sopra terra (l1) 8000 mm
Max. velocità delle raffiche di vento 177 km/h
Riferimento norma CEI EN 62561-(1+2)

Prodotto 103123 è stato aggiunto al blocco note.

Prodotto 103123 è stato aggiunto al carrello.

Apri Web-Shop

Art. 103124 TBM 9M SCFU STTZN AL

GTIN (EAN) 4013364112742, Codice doganale (EU): 85389099, Peso lordo: 37.60 kg, UM: 1.00 pz.


Immagini

Maggior informazioni

Palo di captazione componibile con fondazione a vite, altezza 9000 mm
Palo di captazione componibile con fondazione a vite
per la protezione da fulminazione diretta di
impianti particolari, come ad es. impianti di biogas, impianti fotovoltaici a terra, ecc.
Non sono necessari lavori né di scavo né di realizzazione di fondazioni.
La fondazione a vite va semplicemente
avvitata nel terreno senza particolari lavori preparatori
e va poi ulteriormente fissata con dispersori di profondità.
Per l’ulteriore fissaggio sono necessari
3 dispersori di profondità Ø 20 mm lunghi
1500 mm (art. n. 620 151) per ciascuna fondazione a vite (sono da ordinare separatamente).
I pali di captazione componibili con fondazione a vite sono dimensionati secondo
Eurocode 1 (DIN EN 1991-1-4 + DIN EN 1991-1-4/NA) per una
velocità delle raffiche di vento non superiore a 159 km/h.
Materiale: Fe/tZn / Al
Altezza sopra terra: 9000 mm
Riferimento norma: CEI EN 62561-(1+2)

Fabbricato: DEHN
Tipo: TBM 9M SCFU STTZN AL
Art.: 103124
o similare.

Certificati

 

Caratteristiche tecniche

Materiale Fe/tZn / Al
Altezza sopra terra (l1) 9000 mm
Max. velocità delle raffiche di vento 159 km/h
Riferimento norma CEI EN 62561-(1+2)

Prodotto 103124 è stato aggiunto al blocco note.

Prodotto 103124 è stato aggiunto al carrello.

Apri Web-Shop

Art. 103125 TBM 10M SCFU STTZN AL

GTIN (EAN) 4013364112759, Codice doganale (EU): 85389099, Peso lordo: 42.20 kg, UM: 1.00 pz.


Immagini

Maggior informazioni

Palo di captazione componibile con fondazione a vite, altezza 10.000 mm
Palo di captazione componibile con fondazione a vite
per la protezione da fulminazione diretta di
impianti particolari, come ad es. impianti di biogas, impianti fotovoltaici a terra, ecc.
Non sono necessari lavori né di scavo né di realizzazione di fondazioni.
La fondazione a vite va semplicemente
avvitata nel terreno senza particolari lavori preparatori
e va poi ulteriormente fissata con dispersori di profondità.
Per l’ulteriore fissaggio sono necessari
3 dispersori di profondità Ø 20 mm lunghi
1500 mm (art. n. 620 151) per ciascuna fondazione a vite (sono da ordinare separatamente).
I pali di captazione componibili con fondazione a vite sono dimensionati secondo
Eurocode 1 (DIN EN 1991-1-4 + DIN EN 1991-1-4/NA)
per una velocità delle raffiche di vento non superiore a 116 km/h.
Materiale: Fe/tZn / Al / INOX
Altezza sopra terra: 10000 mm
Riferimento norma: CEI EN 62561-(1+2)

Fabbricato: DEHN
Tipo: TBM 10M SCFU STTZN AL
Art.: 103125
o similare.

Certificati

 

Caratteristiche tecniche

Materiale Fe/tZn / Al / INOX
Altezza sopra terra (l1) 10000 mm
Max. velocità delle raffiche di vento 116 km/h
Riferimento norma CEI EN 62561-(1+2)

Prodotto 103125 è stato aggiunto al blocco note.

Prodotto 103125 è stato aggiunto al carrello.

Apri Web-Shop

Art. 103126 TBM 11M SCFU STTZN AL

GTIN (EAN) 4013364112841, Codice doganale (EU): 85389099, Peso lordo: 42.40 kg, UM: 1.00 pz.


Immagini

Maggior informazioni

Palo di captazione componibile con fondazione a vite, altezza 11.000 mm
Palo di captazione componibile con fondazione a vite
per la protezione da fulminazione diretta di
impianti particolari, come ad es. impianti di biogas, impianti fotovoltaici a terra, ecc.
Non sono necessari lavori né di scavo né di realizzazione di fondazioni.
La fondazione a vite va semplicemente
avvitata nel terreno senza particolari lavori preparatori
e va poi ulteriormente fissata con dispersori di profondità.
Per l’ulteriore fissaggio sono necessari
3 dispersori di profondità Ø 20 mm lunghi
1500 mm (art. n. 620 151) per ciascuna fondazione a vite (sono da ordinare separatamente).
I pali di captazione componibili con fondazione a vite sono dimensionati secondo
Eurocode 1 (DIN EN 1991-1-4 + DIN EN 1991-1-4/NA)
per una velocità delle raffiche di vento non superiore a 112 km/h.
Materiale: Fe/tZn / Al
Altezza sopra terra: 11000 mm
Riferimento norma: CEI EN 62561-(1+2)

Fabbricato: DEHN
Tipo: TBM 11M SCFU STTZN AL
Art.: 103126
o similare.

Certificati

 

Caratteristiche tecniche

Materiale Fe/tZn / Al
Altezza sopra terra (l1) 11000 mm
Max. velocità delle raffiche di vento 112 km/h
Riferimento norma CEI EN 62561-(1+2)

Prodotto 103126 è stato aggiunto al blocco note.

Prodotto 103126 è stato aggiunto al carrello.

Apri Web-Shop

back to top