Les services de votre tableau de bord.
Inscrivez-vous pour accéder à tous les outils.

Pointe de capture télescopiques autoportantes jusqu’à 8 m

Tiges de capture autoportantes avec support à trois ou quatre pieds rabattable pour la protection de grandes structures de toit ; adaptation à la pente du toit jusqu’à 10° max.

Les plots béton empilables (poids 17 kg / référence 102 010) et les plaques de base (référence 102 050) doivent être commandés séparément.

Remarque : Attention aux charges autorisées sur le toit. Le cas échéant, vérifier auprès du constructeur du bâtiment.

Avec support statique St/tZn

3 Produits

Référence de la pièce 105711 FS T D40 1.5 5.2M AL DBS RA560 STTZN

GTIN 4013364500976, Clients tariffs no (UE): 85389099, Poids brut: 13.79 kg, Prix unitaire: 1.00 pièce(s)


Images

Plus d'informations

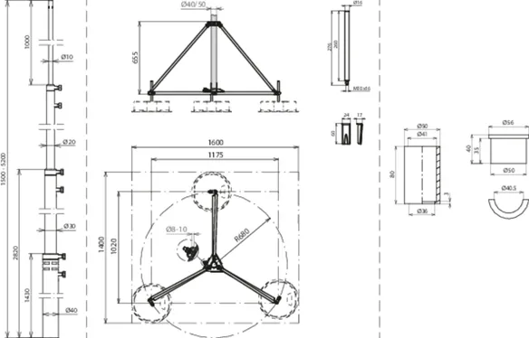
Pointe de capture autoportante, hauteur 5200 mm
Pointe s de capture télescopiques autoportantes
avec trépied rabattable
pour protéger les toitures de grandes dimensions
avec adaptation à la pente du toit de jusqu’à 10° max.
Les pointes de capture sont dimensionnées selon Eurocode 1
(DIN EN 1991-1-4 + DIN EN 1991-1-4/NA).
dimensionnées pour une vitesse de vent en rafales max.
de 149 km/h à 183 km/h
selon la pointe de capture déployée et le nombre de plots béton
pour installation avec plot béton (poids 17 kg)
Plots béton empilables (référence 102 010)
Plaques de protection (référence 102 050)
à commander séparément
Hauteur: 5200 mm
Rayon: 560 mm
Encombrement, trépied: 1210 x 1340 mm
Matériau statique: St/tZn
Matériau, mât de capture: Alu

produit : DEHN
Type: FS T D40 1.5 5.2M AL DBS RA560 STTZN
Référence: 105711
ou équivalent

Certificats

 

Caractéristiques techniques

Hauteur 5200 mm
Pointe de capture (Ø Longueur) 10-1000 mm
mât de terminaison (Ø Longueur) 40/30/20-4200 mm
Rayon 560 mm
Encombrement, trépied 1210 x 1340 mm
Matériau statique St/tZn
Matériau, mât de capture Alu
Norme DIN EN 62561-(1+2)

Le produit 105711 a été ajouté au bloc-notes

Le produit 105711 a été ajouté au panier.

Référence de la pièce 105713 FS T D50 1.6 6.5M AL DBS RA1435 STTZN

GTIN 4013364501041, Clients tariffs no (UE): 85389099, Poids brut: 26.32 kg, Prix unitaire: 1.00 pièce(s)


Images

Plus d'informations

Pointe de capture autoportante, hauteur 6500 mm
Pointes de capture télescopiques autoportantes
avec système d’étayage et trépied rabattable
pour protéger les toitures de grandes dimensions
avec adaptation à la pente du toit de jusqu’à 10° max.
Les pointes de capture sont dimensionnées selon Eurocode 1
(DIN EN 1991-1-4 + DIN EN 1991-1-4/NA).
dimensionnées pour une vitesse de vent en rafales max.
de 149 km/h à 189 km/h
selon la pointe de capture déployée et le nombre de plots béton
pour installation avec plot béton (poids 17 kg)
Plots béton empilables (référence 102 010)
Plaques de protection (référence 102 050)
à commander séparément
Hauteur: 6500 mm
Rayon: 1435 mm
Encombrement, trépied: 2850 x 2530 mm
Matériau statique: St/tZn
Matériau, mât de capture: Alu

produit : DEHN
Type: FS T D50 1.6 6.5M AL DBS RA1435 STTZN
Référence: 105713
ou équivalent

Certificats

 

Caractéristiques techniques

Hauteur 6500 mm
Pointe de capture (Ø Longueur) 10-1000 mm
mât de terminaison (Ø Longueur) 50/40/30/20-5500 mm
Rayon 1435 mm
Encombrement, trépied 2850 x 2530 mm
Matériau statique St/tZn
Matériau, mât de capture Alu
Norme DIN EN 62561-(1+2)

Le produit 105713 a été ajouté au bloc-notes

Le produit 105713 a été ajouté au panier.

Référence de la pièce 105716 FS T D50 1.8 8.0M AL DBS RA1435 STTZN

GTIN 4013364501072, Clients tariffs no (UE): 85389099, Poids brut: 29.28 kg, Prix unitaire: 1.00 pièce(s)


Images

Plus d'informations

Pointe de capture autoportante, hauteur 8000 mm
Pointe s de capture télescopiques autoportantes
avec système d’étayage et trépied rabattable
pour protéger les toitures de grandes dimensions
peut être adapté à la pente de toit jusqu’à 10° max.
Les pointes de capture sont dimensionnées selon Eurocode 1
(DIN EN 1991-1-4 + DIN EN 1991-1-4/NA).
dimensionnées pour une vitesse de vent en rafales max.
de 147 km/h à 149 km/h
selon la pointe de capture déployée et le nombre de plots béton
pour installation avec plot béton (poids 17 kg)
Plots béton empilables (référence 102 010)
Plaques de protection (référence 102 050)
à commander séparément
Hauteur: 8000 mm
Rayon: 1435 mm
Encombrement, trépied: 2850 x 2530 mm
Matériau statique: St/tZn
Matériau, mât de capture: Alu

produit : DEHN
Type: FS T D50 1.8 8.0M AL DBS RA1435 STTZN
Référence: 105716
ou équivalent

Certificats

 

Caractéristiques techniques

Hauteur 8000 mm
Pointe de capture (Ø Longueur) 10-1000 mm
mât de terminaison (Ø Longueur) 50/60/50/40/30/20-7000 mm
Rayon 1435 mm
Encombrement, trépied 2850 x 2530 mm
Matériau statique St/tZn
Matériau, mât de capture Alu
Norme DIN EN 62561-(1+2)

Le produit 105716 a été ajouté au bloc-notes

Le produit 105716 a été ajouté au panier.


Avec support en INOX

4 Produits

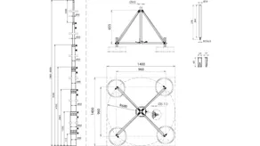
Référence de la pièce 105710 FS T D40 1.5 5.2M AL DBS RA680 V2A

GTIN 4013364500969, Clients tariffs no (UE): 85389099, Poids brut: 12.58 kg, Prix unitaire: 1.00 pièce(s)


Images

Plus d'informations

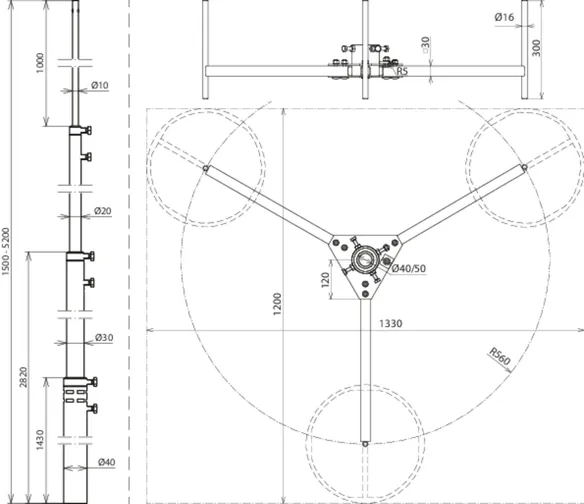
Pointe de capture autoportante, hauteur 5200 mm
Pointe s de capture télescopiques autoportantes
avec petit trépied en INOX (version rabattable)
pour protéger les toitures de grandes dimensions
avec set d’adaptation pour ajuster le diamètre D50 à D40mm
Compensation de la pente de toit jusqu’à 10° max.
Les pointes de capture sont dimensionnées selon Eurocode 1
(DIN EN 1991-1-4 + DIN EN 1991-1-4/NA).
dimensionnées pour une vitesse de vent en rafales max.
de 149 km/h à 191 km/h
selon la pointe de capture déployée et le nombre de plots béton
pour installation avec plot béton (poids 17 kg)
Set de plots béton (référence 107 396)
Plots béton empilables (référence 102 010)
Plaques de protection (référence 102 050)
à commander séparément
Hauteur: 5200 mm
Rayon: 680 mm
Encombrement, trépied: 1400 x 1600 mm
Matériau statique: INOX
Matériau, mât de capture: Alu

produit : DEHN
Type: FS T D40 1.5 5.2M AL DBS RA680 V2A
Référence: 105710
ou équivalent

 

Caractéristiques techniques

Hauteur 5200 mm
Pointe de capture (Ø Longueur) 10-1000 mm
mât de terminaison (Ø Longueur) 40/30/20-4200 mm
Rayon 680 mm
Encombrement, trépied 1400 x 1600 mm
Matériau statique INOX
Matériau, mât de capture Alu
Norme DIN EN 62561-(1+2)

Le produit 105710 a été ajouté au bloc-notes

Le produit 105710 a été ajouté au panier.

Référence de la pièce 105712 FS T D50 1.6 6.5M AL VBS RA680 V2A

GTIN 4013364500983, Clients tariffs no (UE): 85389099, Poids brut: 16.77 kg, Prix unitaire: 1.00 pièce(s)


Images

Plus d'informations

Pointe de capture autoportante, hauteur 6500 mm
Pointe s de capture télescopiques autoportantes
avec petit support à quatre pieds en INOX (version rabattable)
pour protéger les toitures de grandes dimensions
Compensation de la pente de toit jusqu’à 10° max.
Les pointes de capture sont dimensionnées selon Eurocode 1
(DIN EN 1991-1-4 + DIN EN 1991-1-4/NA).
dimensionnées pour une vitesse de vent en rafales max.
de 149 km/h à 189 km/h
selon la pointe de capture déployée et le nombre de plots béton
pour installation avec plot béton (poids 17 kg)
Set de plots béton (référence 107 396)
Plots béton empilables (référence 102 010)
Plaques de protection (référence 102 050)
à commander séparément
Hauteur: 6500 mm
Rayon: 680 mm
Encombrement, trépied: 1400 x 1400 mm
Matériau statique: INOX
Matériau, mât de capture: Alu

produit : DEHN
Type: FS T D50 1.6 6.5M AL VBS RA680 V2A
Référence: 105712
ou équivalent

 

Caractéristiques techniques

Hauteur 6500 mm
Pointe de capture (Ø Longueur) 10-1000 mm
mât de terminaison (Ø Longueur) 50/40/30/20-5500 mm
Rayon 680 mm
Encombrement, trépied 1400 x 1400 mm
Matériau statique INOX
Matériau, mât de capture Alu
Norme DIN EN 62561-(1+2)

Le produit 105712 a été ajouté au bloc-notes

Le produit 105712 a été ajouté au panier.

Référence de la pièce 105714 FS T D50 1.8 8.0M AL VBS RA680 V2A

GTIN 4013364501058, Clients tariffs no (UE): 85389099, Poids brut: 19.95 kg, Prix unitaire: 1.00 pièce(s)


Images

Plus d'informations

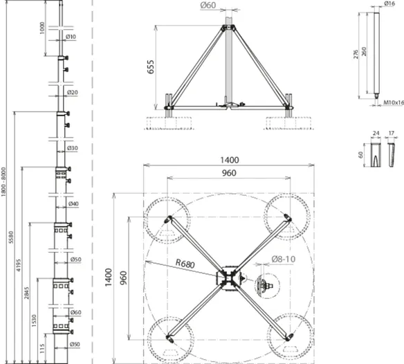
Pointe de capture autoportante, hauteur 8000 mm
Pointe s de capture télescopiques autoportantes
avec petit support à quatre pieds en INOX (version rabattable)
pour protéger les toitures de grandes dimensions
Compensation de la pente de toit jusqu’à 10° max.
Les pointes de capture sont dimensionnées selon Eurocode 1
(DIN EN 1991-1-4 + DIN EN 1991-1-4/NA).
dimensionnées pour une vitesse de vent en rafales max.
de 140 km/h à 150 km/h
selon la pointe de capture déployée et le nombre de plots béton
pour installation avec plot béton (poids 17 kg)
Set de plots béton (référence 107 396)
Plots béton empilables (référence 102 010)
Plaques de protection (référence 102 050)
à commander séparément
Hauteur: 8000 mm
Rayon: 680 mm
Encombrement, trépied: 1400 x 1400 mm
Matériau statique: INOX
Matériau, mât de capture: Alu

produit : DEHN
Type: FS T D50 1.8 8.0M AL VBS RA680 V2A
Référence: 105714
ou équivalent

 

Caractéristiques techniques

Hauteur 8000 mm
Pointe de capture (Ø Longueur) 10-1000 mm
mât de terminaison (Ø Longueur) 50/60/50/40/30/20-7000 mm
Rayon 680 mm
Encombrement, trépied 1400 x 1400 mm
Matériau statique INOX
Matériau, mât de capture Alu
Norme DIN EN 62561-(1+2)

Le produit 105714 a été ajouté au bloc-notes

Le produit 105714 a été ajouté au panier.

Référence de la pièce 105715 FS T D50 1.8 8.0M AL VBS RA1330 V2A

GTIN 4013364501065, Clients tariffs no (UE): 85389099, Poids brut: 30.45 kg, Prix unitaire: 1.00 pièce(s)


Images

Plus d'informations

Pointe de capture autoportante, hauteur 8000 mm
Pointe s de capture télescopiques autoportantes
avec grand support à quatre pieds en INOX (version rabattable)
pour protéger les toitures de grandes dimensions
Compensation de la pente de toit jusqu’à 10° max.
Les pointes de capture sont dimensionnées selon Eurocode 1
(DIN EN 1991-1-4 + DIN EN 1991-1-4/NA).
dimensionnées pour une vitesse de vent en rafales max.
de 155 km/h à 170 km/h
selon la pointe de capture déployée et le nombre de plots béton
pour installation avec plot béton (poids 17 kg)
Set de plots béton (référence 107 396)
Plots béton empilables (référence 102 010)
Plaques de protection (référence 102 050)
à commander séparément
Hauteur: 8000 mm
Rayon: 1330 mm
Encombrement, trépied: 2300 x 2300 mm
Matériau statique: INOX
Matériau, mât de capture: Alu

produit : DEHN
Type: FS T D50 1.8 8.0M AL VBS RA1330 V2A
Référence: 105715
ou équivalent

 

Caractéristiques techniques

Hauteur 8000 mm
Pointe de capture (Ø Longueur) 10-1000 mm
mât de terminaison (Ø Longueur) 50/60/50/40/30/20-7000 mm
Rayon 1330 mm
Encombrement, trépied 2300 x 2300 mm
Matériau statique INOX
Matériau, mât de capture Alu
Norme DIN EN 62561-(1+2)

Le produit 105715 a été ajouté au bloc-notes

Le produit 105715 a été ajouté au panier.


back to top