Ihre Services im Dashboard..
Registriert nutzen Sie das komplette Angebot.

Fangstangen freistehend 4 bis 9 m

Fangstange freistehend mit klappbarem Dreibeinstativ zum Schutz von größeren Dachaufbauten und Anpassung an die Dachneigung bis max. 10°.

Der stapelbare Betonsockel (Art.-Nr. 102 010) und die Unterlegplatte (Art.-Nr. 102 050) sind separat zu bestellen.

Bestandteile:
– Rohr Ø40 x 5 mm
– Rohrfangstange verjüngt Ø16 / 10 mm; optional Ø22 / 16 / 10 mm
– Doppelüberleger für 2x Rd 8-10 mm
– Dreibeinstativ für Betonsockel mit Keiltechnik

Hinweis: Zulässige Dachlasten sind zu beachten und gegebenenfalls mit dem Gebäudeerrichter abzuklären.

Bis Höhe 5,5 m

4 Produkte

Art.-Nr. 105400 FS D40 16 10 4000 AL DBS KB STTZN

GTIN 4013364094383, Zolltarifnr. (EU): 85389099, Bruttogewicht: 13.40 kg, VPE: 1.00 Stk.


Abbildungen

Weitere Information

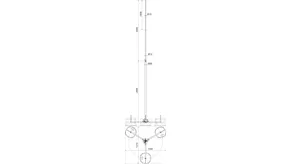
Fangstange freistehend Höhe 4000mm
Fangstangen freistehend mit klappbarem Dreibeinstativ
zum Schutz von größeren Dachaufbauten,
mit Anpassung an die Dachneigung bis max.10 Grad.
Die Fangstangen sind nach
Eurocode 1 (DIN EN 1991-1-4 + DIN EN 1991-1-4/NA) für eine
max. Böenwindgeschwindigkeit von 185 km/h dimensioniert.
Der stapelbare Betonsockel (Art.-Nr. 102 010) und die
Unterlegplatte (Art.-Nr. 102 050) sind separat zu bestellen.
Höhe: 4000 mm
Radius: 560 mm
Max. Böenwindgeschwindigkeit bei 3 Sockeln à 17 kg: 132 km/h
Max. Böenwindgeschwindigkeit bei 6 Sockeln à 17 kg: 184 km/h
Max. Böenwindgeschwindigkeit bei 9 Sockeln à 17 kg: 185 km/h
Platzbedarf Stativ: 1210 x 1340 mm
Werkstoff Stativ: St/tZn
Werkstoff Fangstange: Al
Normenbezug: DIN EN 62561-(1+2)

Fabrikat: DEHN
Typ: FS D40 16 10 4000 AL DBS KB STTZN
Art.-Nr.: 105400
oder gleichwertig.

Zertifikate

 

Technische Daten

Höhe 4000 mm
Radius 560 mm
Max. Böenwindgeschwindigkeit bei 3 Sockeln à 17 kg 132 km/h
Max. Böenwindgeschwindigkeit bei 6 Sockeln à 17 kg 184 km/h
Max. Böenwindgeschwindigkeit bei 9 Sockeln à 17 kg 185 km/h
Platzbedarf Stativ 1210 x 1340 mm
Werkstoff Stativ St/tZn
Werkstoff Fangstange Al
Normenbezug DIN EN 62561-(1+2)

Artikel 105400 wurde zum Merkzettel hinzugefügt.

Zum Merkzettel

Artikel 105400 wurde zum Warenkorb hinzugefügt.

Zum Warenkorb

Art.-Nr. 105450 FS D40 22 16 10 4500 AL DBS KB STTZN

GTIN 4013364094413, Zolltarifnr. (EU): 85389099, Bruttogewicht: 13.80 kg, VPE: 1.00 Stk.


Abbildungen

Weitere Information

Fangstange freistehend Höhe 4500mm
Fangstangen freistehend mit klappbarem Dreibeinstativ
zum Schutz von größeren Dachaufbauten,
mit Anpassung an die Dachneigung bis max.10 Grad.
Die Fangstangen sind nach
Eurocode 1 (DIN EN 1991-1-4 + DIN EN 1991-1-4/NA) für eine
max. Böenwindgeschwindigkeit von 186 km/h dimensioniert.
Der stapelbare Betonsockel (Art.-Nr. 102 010) und die
Unterlegplatte (Art.-Nr. 102 050) sind separat zu bestellen.
Höhe: 4500 mm
Radius: 560 mm
Max. Böenwindgeschwindigkeit bei 3 Sockeln à 17 kg: 117 km/h
Max. Böenwindgeschwindigkeit bei 6 Sockeln à 17 kg: 163 km/h
Max. Böenwindgeschwindigkeit bei 9 Sockeln à 17 kg: 186 km/h
Platzbedarf Stativ: 1210 x 1340 mm
Werkstoff Stativ: St/tZn
Werkstoff Fangstange: Al
Normenbezug: DIN EN 62561-(1+2)

Fabrikat: DEHN
Typ: FS D40 22 16 10 4500 AL DBS KB STTZN
Art.-Nr.: 105450
oder gleichwertig.

Zertifikate

 

Technische Daten

Höhe 4500 mm
Radius 560 mm
Max. Böenwindgeschwindigkeit bei 3 Sockeln à 17 kg 117 km/h
Max. Böenwindgeschwindigkeit bei 6 Sockeln à 17 kg 163 km/h
Max. Böenwindgeschwindigkeit bei 9 Sockeln à 17 kg 186 km/h
Platzbedarf Stativ 1210 x 1340 mm
Werkstoff Stativ St/tZn
Werkstoff Fangstange Al
Normenbezug DIN EN 62561-(1+2)

Artikel 105450 wurde zum Merkzettel hinzugefügt.

Zum Merkzettel

Artikel 105450 wurde zum Warenkorb hinzugefügt.

Zum Warenkorb

Art.-Nr. 105500 FS D40 16 10 5000 AL DBS KB STTZN

GTIN 4013364094420, Zolltarifnr. (EU): 85389099, Bruttogewicht: 15.00 kg, VPE: 1.00 Stk.


Abbildungen

Weitere Information

Fangstange freistehend Höhe 5000mm
Fangstangen freistehend mit klappbarem Dreibeinstativ
zum Schutz von größeren Dachaufbauten,
mit Anpassung an die Dachneigung bis max.10 Grad.
Die Fangstangen sind nach
Eurocode 1 (DIN EN 1991-1-4 + DIN EN 1991-1-4/NA) für eine
max. Böenwindgeschwindigkeit von 163 km/h dimensioniert.
Der stapelbare Betonsockel (Art.-Nr. 102 010) und die
Unterlegplatte (Art.-Nr. 102 050) sind separat zu
bestellen.
Höhe: 5000 mm
Radius: 560 mm
Max. Böenwindgeschwindigkeit bei 3 Sockeln à 17 kg: 99 km/h
Max. Böenwindgeschwindigkeit bei 6 Sockeln à 17 kg: 132 km/h
Max. Böenwindgeschwindigkeit bei 9 Sockeln à 17 kg: 163 km/h
Platzbedarf Stativ: 1210 x 1340 mm
Werkstoff Stativ: St/tZn
Werkstoff Fangstange: Al
Normenbezug: DIN EN 62561-(1+2)

Fabrikat: DEHN
Typ: FS D40 16 10 5000 AL DBS KB STTZN
Art.-Nr.: 105500
oder gleichwertig.

Zertifikate

 

Technische Daten

Höhe 5000 mm
Radius 560 mm
Max. Böenwindgeschwindigkeit bei 3 Sockeln à 17 kg 99 km/h
Max. Böenwindgeschwindigkeit bei 6 Sockeln à 17 kg 132 km/h
Max. Böenwindgeschwindigkeit bei 9 Sockeln à 17 kg 163 km/h
Platzbedarf Stativ 1210 x 1340 mm
Werkstoff Stativ St/tZn
Werkstoff Fangstange Al
Normenbezug DIN EN 62561-(1+2)

Artikel 105500 wurde zum Merkzettel hinzugefügt.

Zum Merkzettel

Artikel 105500 wurde zum Warenkorb hinzugefügt.

Zum Warenkorb

Art.-Nr. 105550 FS D40 22 16 10 5500 AL DBS KB STTZN

GTIN 4013364094437, Zolltarifnr. (EU): 85389099, Bruttogewicht: 15.20 kg, VPE: 1.00 Stk.


Abbildungen

Weitere Information

Fangstange freistehend Höhe 5500mm
Fangstangen freistehend mit klappbarem Dreibeinstativ
zum Schutz von größeren Dachaufbauten,
mit Anpassung an die Dachneigung bis max.10 Grad.
Die Fangstangen sind nach
Eurocode 1 (DIN EN 1991-1-4 + DIN EN 1991-1-4/NA) für eine
max. Böenwindgeschwindigkeit von 147 km/h dimensioniert.
Der stapelbare Betonsockel (Art.-Nr. 102 010) und die
Unterlegplatte (Art.-Nr. 102 050) sind separat zu bestellen.
Höhe: 5500 mm
Radius: 560 mm
Max. Böenwindgeschwindigkeit bei 3 Sockeln à 17 kg: 93 km/h
Max. Böenwindgeschwindigkeit bei 6 Sockeln à 17 kg: 121 km/h
Max. Böenwindgeschwindigkeit bei 9 Sockeln à 17 kg: 147 km/h
Platzbedarf Stativ: 1210 x 1340 mm
Werkstoff Stativ: St/tZn
Werkstoff Fangstange: Al
Normenbezug: DIN EN 62561-(1+2)

Fabrikat: DEHN
Typ: FS D40 22 16 10 5500 AL DBS KB STTZN
Art.-Nr.: 105550
oder gleichwertig.

Zertifikate

 

Technische Daten

Höhe 5500 mm
Radius 560 mm
Max. Böenwindgeschwindigkeit bei 3 Sockeln à 17 kg 93 km/h
Max. Böenwindgeschwindigkeit bei 6 Sockeln à 17 kg 121 km/h
Max. Böenwindgeschwindigkeit bei 9 Sockeln à 17 kg 147 km/h
Platzbedarf Stativ 1210 x 1340 mm
Werkstoff Stativ St/tZn
Werkstoff Fangstange Al
Normenbezug DIN EN 62561-(1+2)

Artikel 105550 wurde zum Merkzettel hinzugefügt.

Zum Merkzettel

Artikel 105550 wurde zum Warenkorb hinzugefügt.

Zum Warenkorb

Bis Höhe 9 m mit verstellbaren Streben aus NIRO Ø10 mm

7 Produkte

Art.-Nr. 105600 FS D40 16 10 6000 AL DBS KB STTZN

GTIN 4013364094444, Zolltarifnr. (EU): 85389099, Bruttogewicht: 29.40 kg, VPE: 1.00 Stk.


Abbildungen

Weitere Information

Fangstange freistehend Höhe 6000mm
Fangstangen freistehend mit klappbarem Dreibeinstativ
zum Schutz von größeren Dachaufbauten,
mit Anpassung an die Dachneigung bis max.10 Grad.
Die Fangstangen sind nach
Eurocode 1 (DIN EN 1991-1-4 + DIN EN 1991-1-4/NA) für eine
max. Böenwindgeschwindigkeit von 187 km/h dimensioniert.
Der stapelbare Betonsockel (Art.-Nr. 102 010) und die
Unterlegplatte (Art.-Nr. 102 050) sind separat zu
bestellen.
Höhe: 6000 mm
Radius: 1435 mm
Max. Böenwindgeschwindigkeit bei 3 Sockeln à 17 kg: 110 km/h
Max. Böenwindgeschwindigkeit bei 6 Sockeln à 17 kg: 137 km/h
Max. Böenwindgeschwindigkeit bei 9 Sockeln à 17 kg: 170 km/h
Max. Böenwindgeschwindigkeit bei 12 Sockeln à 17 kg: 187 km/h
Platzbedarf Stativ: 2530 x 2850 mm
Werkstoff Stativ: St/tZn
Werkstoff Fangstange: Al
Normenbezug: DIN EN 62561-(1+2)

Fabrikat: DEHN
Typ: FS D40 16 10 6000 AL DBS KB STTZN
Art.-Nr.: 105600
oder gleichwertig.

Zertifikate

 

Technische Daten

Höhe 6000 mm
Radius 1435 mm
Max. Böenwindgeschwindigkeit bei 3 Sockeln à 17 kg 110 km/h
Max. Böenwindgeschwindigkeit bei 6 Sockeln à 17 kg 137 km/h
Max. Böenwindgeschwindigkeit bei 9 Sockeln à 17 kg 170 km/h
Max. Böenwindgeschwindigkeit bei 12 Sockeln à 17 kg 187 km/h
Platzbedarf Stativ 2530 x 2850 mm
Werkstoff Stativ St/tZn
Werkstoff Fangstange Al
Normenbezug DIN EN 62561-(1+2)

Artikel 105600 wurde zum Merkzettel hinzugefügt.

Zum Merkzettel

Artikel 105600 wurde zum Warenkorb hinzugefügt.

Zum Warenkorb

Art.-Nr. 105650 FS D40 22 16 10 6500 AL DBS KB STTZN

GTIN 4013364094451, Zolltarifnr. (EU): 85389099, Bruttogewicht: 30.00 kg, VPE: 1.00 Stk.


Abbildungen

Weitere Information

Fangstange freistehend Höhe 6500mm
Fangstangen freistehend mit klappbarem Dreibeinstativ
zum Schutz von größeren Dachaufbauten,
mit Anpassung an die Dachneigung bis max.10 Grad.
Die Fangstangen sind nach
Eurocode 1 (DIN EN 1991-1-4 + DIN EN 1991-1-4/NA) für eine
max. Böenwindgeschwindigkeit von 187 km/h dimensioniert.
Der stapelbare Betonsockel (Art.-Nr. 102 010) und die
Unterlegplatte (Art.-Nr. 102 050) sind separat zu bestellen.
Höhe: 6500 mm
Radius: 1435 mm
Max. Böenwindgeschwindigkeit bei 3 Sockeln à 17 kg: 105 km/h
Max. Böenwindgeschwindigkeit bei 6 Sockeln à 17 kg: 132 km/h
Max. Böenwindgeschwindigkeit bei 9 Sockeln à 17 kg: 159 km/h
Max. Böenwindgeschwindigkeit bei 12 Sockeln à 17 kg: 187 km/h
Platzbedarf Stativ: 2530 x 2850 mm
Werkstoff Stativ: St/tZn
Werkstoff Fangstange: Al
Normenbezug: DIN EN 62561-(1+2)

Fabrikat: DEHN
Typ: FS D40 22 16 10 6500 AL DBS KB STTZN
Art.-Nr.: 105650
oder gleichwertig.

Zertifikate

 

Technische Daten

Höhe 6500 mm
Radius 1435 mm
Max. Böenwindgeschwindigkeit bei 3 Sockeln à 17 kg 105 km/h
Max. Böenwindgeschwindigkeit bei 6 Sockeln à 17 kg 132 km/h
Max. Böenwindgeschwindigkeit bei 9 Sockeln à 17 kg 159 km/h
Max. Böenwindgeschwindigkeit bei 12 Sockeln à 17 kg 187 km/h
Platzbedarf Stativ 2530 x 2850 mm
Werkstoff Stativ St/tZn
Werkstoff Fangstange Al
Normenbezug DIN EN 62561-(1+2)

Artikel 105650 wurde zum Merkzettel hinzugefügt.

Zum Merkzettel

Artikel 105650 wurde zum Warenkorb hinzugefügt.

Zum Warenkorb

Art.-Nr. 105700 FS D40 16 10 7000 AL DBS KB STTZN

GTIN 4013364094468, Zolltarifnr. (EU): 85389099, Bruttogewicht: 31.20 kg, VPE: 1.00 Stk.


Abbildungen

Weitere Information

Fangstange freistehend Höhe 7000mm
Fangstangen freistehend mit klappbarem Dreibeinstativ
zum Schutz von größeren Dachaufbauten,
mit Anpassung an die Dachneigung bis max.10 Grad.
Die Fangstangen sind nach
Eurocode 1 (DIN EN 1991-1-4 + DIN EN 1991-1-4/NA) für eine
max. Böenwindgeschwindigkeit von 163 km/h dimensioniert.
Der stapelbare Betonsockel (Art.-Nr. 102 010) und die
Unterlegplatte (Art.-Nr. 102 050) sind separat zu bestellen.
Höhe: 7000 mm
Radius: 1435 mm
Max. Böenwindgeschwindigkeit bei 3 Sockeln à 17 kg: 96 km/h
Max. Böenwindgeschwindigkeit bei 6 Sockeln à 17 kg: 120 km/h
Max. Böenwindgeschwindigkeit bei 9 Sockeln à 17 kg: 137 km/h
Max. Böenwindgeschwindigkeit bei 12 Sockeln à 17 kg: 163 km/h
Platzbedarf Stativ: 2530 x 2850 mm
Werkstoff Stativ: St/tZn
Werkstoff Fangstange: Al
Normenbezug: DIN EN 62561-(1+2)

Fabrikat: DEHN
Typ: FS D40 16 10 7000 AL DBS KB STTZN
Art.-Nr.: 105700
oder gleichwertig.

Zertifikate

 

Technische Daten

Höhe 7000 mm
Radius 1435 mm
Max. Böenwindgeschwindigkeit bei 3 Sockeln à 17 kg 96 km/h
Max. Böenwindgeschwindigkeit bei 6 Sockeln à 17 kg 120 km/h
Max. Böenwindgeschwindigkeit bei 9 Sockeln à 17 kg 137 km/h
Max. Böenwindgeschwindigkeit bei 12 Sockeln à 17 kg 163 km/h
Platzbedarf Stativ 2530 x 2850 mm
Werkstoff Stativ St/tZn
Werkstoff Fangstange Al
Normenbezug DIN EN 62561-(1+2)

Artikel 105700 wurde zum Merkzettel hinzugefügt.

Zum Merkzettel

Artikel 105700 wurde zum Warenkorb hinzugefügt.

Zum Warenkorb

Art.-Nr. 105750 FS D40 22 16 10 7500 AL DBS KB STTZN

GTIN 4013364094475, Zolltarifnr. (EU): 85389099, Bruttogewicht: 31.40 kg, VPE: 1.00 Stk.


Abbildungen

Weitere Information

Fangstange freistehend Höhe 7500mm
Fangstangen freistehend mit klappbarem Dreibeinstativ
zum Schutz von größeren Dachaufbauten,
mit Anpassung an die Dachneigung bis max.10 Grad.
Die Fangstangen sind nach
Eurocode 1 (DIN EN 1991-1-4 + DIN EN 1991-1-4/NA)
für eine max. Böenwindgeschwindigkeit von 149 km/h dimensioniert.
Der stapelbare Betonsockel (Art.-Nr. 102 010) und die
Unterlegplatte (Art.-Nr. 102 050) sind separat zu bestellen.
Höhe: 7500 mm
Radius: 1435 mm
Max. Böenwindgeschwindigkeit bei 3 Sockeln à 17 kg: 93 km/h
Max. Böenwindgeschwindigkeit bei 6 Sockeln à 17 kg: 112 km/h
Max. Böenwindgeschwindigkeit bei 9 Sockeln à 17 kg: 135 km/h
Max. Böenwindgeschwindigkeit bei 12 Sockeln à 17 kg: 149 km/h
Platzbedarf Stativ: 2530 x 2850 mm
Werkstoff Stativ: St/tZn
Werkstoff Fangstange: Al
Normenbezug: DIN EN 62561-(1+2)

Fabrikat: DEHN
Typ: FS D40 22 16 10 7500 AL DBS KB STTZN
Art.-Nr.: 105750
oder gleichwertig.

Zertifikate

 

Technische Daten

Höhe 7500 mm
Radius 1435 mm
Max. Böenwindgeschwindigkeit bei 3 Sockeln à 17 kg 93 km/h
Max. Böenwindgeschwindigkeit bei 6 Sockeln à 17 kg 112 km/h
Max. Böenwindgeschwindigkeit bei 9 Sockeln à 17 kg 135 km/h
Max. Böenwindgeschwindigkeit bei 12 Sockeln à 17 kg 149 km/h
Platzbedarf Stativ 2530 x 2850 mm
Werkstoff Stativ St/tZn
Werkstoff Fangstange Al
Normenbezug DIN EN 62561-(1+2)

Artikel 105750 wurde zum Merkzettel hinzugefügt.

Zum Merkzettel

Artikel 105750 wurde zum Warenkorb hinzugefügt.

Zum Warenkorb

Art.-Nr. 105800 FS D40 16 10 8000 AL DBS KB STTZN

GTIN 4013364094338, Zolltarifnr. (EU): 85389099, Bruttogewicht: 32.60 kg, VPE: 1.00 Stk.


Abbildungen

Weitere Information

Fangstange freistehend Höhe 8000mm
Fangstangen freistehend mit klappbarem Dreibeinstativ
zum Schutz von größeren Dachaufbauten,
mit Anpassung an die Dachneigung bis max.10 Grad.
Die Fangstangen sind nach
Eurocode 1 (DIN EN 1991-1-4 + DIN EN 1991-1-4/NA) für eine
max. Böenwindgeschwindigkeit von 137 km/h dimensioniert.
Der stapelbare Betonsockel (Art.-Nr. 102 010) und die
Unterlegplatte (Art.-Nr. 102 050) sind separat zu bestellen.
Höhe: 8000 mm
Radius: 1435 mm
Max. Böenwindgeschwindigkeit bei 6 Sockeln à 17 kg: 105 km/h
Max. Böenwindgeschwindigkeit bei 9 Sockeln à 17 kg: 124 km/h
Max. Böenwindgeschwindigkeit bei 12 Sockeln à 17 kg: 137 km/h
Platzbedarf Stativ: 2530 x 2850 mm
Werkstoff Stativ: St/tZn
Werkstoff Fangstange: Al
Normenbezug: DIN EN 62561-(1+2)

Fabrikat: DEHN
Typ: FS D40 16 10 8000 AL DBS KB STTZN
Art.-Nr.: 105800
oder gleichwertig.

Zertifikate

 

Technische Daten

Höhe 8000 mm
Radius 1435 mm
Max. Böenwindgeschwindigkeit bei 6 Sockeln à 17 kg 105 km/h
Max. Böenwindgeschwindigkeit bei 9 Sockeln à 17 kg 124 km/h
Max. Böenwindgeschwindigkeit bei 12 Sockeln à 17 kg 137 km/h
Platzbedarf Stativ 2530 x 2850 mm
Werkstoff Stativ St/tZn
Werkstoff Fangstange Al
Normenbezug DIN EN 62561-(1+2)

Artikel 105800 wurde zum Merkzettel hinzugefügt.

Zum Merkzettel

Artikel 105800 wurde zum Warenkorb hinzugefügt.

Zum Warenkorb

Art.-Nr. 105850 FS D40 22 16 10 8500 AL DBS KB STTZN

GTIN 4013364094482, Zolltarifnr. (EU): 85389099, Bruttogewicht: 32.80 kg, VPE: 1.00 Stk.


Abbildungen

Weitere Information

Fangstange freistehend Höhe 8500mm
Fangstangen freistehend mit klappbarem Dreibeinstativ
zum Schutz von größeren Dachaufbauten,
mit Anpassung an die Dachneigung bis max.10 Grad.
Die Fangstangen sind nach
Eurocode 1 (DIN EN 1991-1-4 + DIN EN 1991-1-4/NA) für eine
max. Böenwindgeschwindigkeit von 132 km/h dimensioniert.
Der stapelbare Betonsockel (Art.-Nr. 102 010) und die
Unterlegplatte (Art.-Nr. 102 050) sind separat zu bestellen.
Höhe: 8500 mm
Radius: 1435 mm
Max. Böenwindgeschwindigkeit bei 6 Sockeln à 17 kg: 101 km/h
Max. Böenwindgeschwindigkeit bei 9 Sockeln à 17 kg: 117 km/h
Max. Böenwindgeschwindigkeit bei 12 Sockeln à 17 kg: 132 km/h
Platzbedarf Stativ: 2530 x 2850 mm
Werkstoff Stativ: St/tZn
Werkstoff Fangstange: Al
Normenbezug: DIN EN 62561-(1+2)

Fabrikat: DEHN
Typ: FS D40 22 16 10 8500 AL DBS KB STTZN
Art.-Nr.: 105850
oder gleichwertig.

Zertifikate

 

Technische Daten

Höhe 8500 mm
Radius 1435 mm
Max. Böenwindgeschwindigkeit bei 6 Sockeln à 17 kg 101 km/h
Max. Böenwindgeschwindigkeit bei 9 Sockeln à 17 kg 117 km/h
Max. Böenwindgeschwindigkeit bei 12 Sockeln à 17 kg 132 km/h
Platzbedarf Stativ 2530 x 2850 mm
Werkstoff Stativ St/tZn
Werkstoff Fangstange Al
Normenbezug DIN EN 62561-(1+2)

Artikel 105850 wurde zum Merkzettel hinzugefügt.

Zum Merkzettel

Artikel 105850 wurde zum Warenkorb hinzugefügt.

Zum Warenkorb

Art.-Nr. 105900 FS D40 22 16 10 9000 AL DBS KB STTZN

GTIN 4013364240766, Zolltarifnr. (EU): 85389099, Bruttogewicht: 33.67 kg, VPE: 1.00 Stk.


Abbildungen

Weitere Information

Fangstange freistehend Höhe 9000mm
Fangstangen freistehend mit klappbarem Dreibeinstativ
zum Schutz von größeren Dachaufbauten,
mit Anpassung an die Dachneigung bis max.10 Grad.
Die Fangstangen sind nach
Eurocode 1 (DIN EN 1991-1-4 + DIN EN 1991-1-4/NA) für eine
max. Böenwindgeschwindigkeit von 132 km/h dimensioniert.
Der stapelbare Betonsockel (Art.-Nr. 102 010) und die
Unterlegplatte (Art.-Nr. 102 050) sind separat zu bestellen.
Höhe: 9000 mm
Radius: 1435 mm
Max. Böenwindgeschwindigkeit bei 6 Sockeln à 17 kg: 101 km/h
Max. Böenwindgeschwindigkeit bei 9 Sockeln à 17 kg: 117 km/h
Max. Böenwindgeschwindigkeit bei 12 Sockeln à 17 kg: 132 km/h
Platzbedarf Stativ: 2530 x 2850 mm
Werkstoff Stativ: St/tZn
Werkstoff Fangstange: Al
Normenbezug: DIN EN 62561-(1+2)

Fabrikat: DEHN
Typ: FS D40 22 16 10 9000 AL DBS KB STTZN
Art.-Nr.: 105900
oder gleichwertig.

Zertifikate

 

Technische Daten

Höhe 9000 mm
Radius 1435 mm
Max. Böenwindgeschwindigkeit bei 6 Sockeln à 17 kg 101 km/h
Max. Böenwindgeschwindigkeit bei 9 Sockeln à 17 kg 117 km/h
Max. Böenwindgeschwindigkeit bei 12 Sockeln à 17 kg 132 km/h
Platzbedarf Stativ 2530 x 2850 mm
Werkstoff Stativ St/tZn
Werkstoff Fangstange Al
Normenbezug DIN EN 62561-(1+2)

Artikel 105900 wurde zum Merkzettel hinzugefügt.

Zum Merkzettel

Artikel 105900 wurde zum Warenkorb hinzugefügt.

Zum Warenkorb

nach oben