Ihre Services im Dashboard..
Registriert nutzen Sie das komplette Angebot.

Fangmast für HVI light plus Leitung auf Flachdächern

Komplettes Set bestehend aus Fangspitze / -stange, Stützrohr, Befestigungsset (inkl. Anschlussplatte, Kunststoffhaltern, Kabelbinder und PA-Abgriff) und Stativ.
Mit Anpassung an die Dachneigung bis max. 10°.
Die Betonsockel (Gewicht 17 kg) und die Unterlegplatten sind separat zu bestellen.

Fangmast mit Dreibeinstativ klein und Fangspitze

2 Produkte

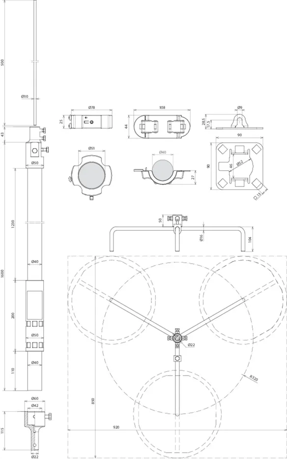
Art.-Nr. 819685 FM D40 L2200 GFK AL V2A DBS R320 STTZN

GTIN 4013364494459, Zolltarifnr. (EU): 85389099, Bruttogewicht: 6.34 kg, VPE: 1.00 Stk.


Abbildungen

Weitere Information

Fangmaste für HVI light plus Leitung auf Flachdächer
komplett mit 4-fach Anschlussplatte für die
HVI light plus Leitung und Befestigungsset zur Montage
der Leitung am Fangmast
Zum Einhalten des Trennungsabstand zu elektrisch
leitenden Teilen nach DIN EN 62305-3 (VDE 0185-305-3)
Isolierstrecke aus glasfaserverstärktem Kunststoff (GFK)
Rohr Ø40 mm
Materialfaktor km = 0,7
Farbe lichtgrau, UV-stabilisiert
Fangmaste dimensioniert nach
Eurocode 1 (DIN EN 1991-1-4 + DIN EN 1991-1-4/NA)
Anpassung an die Dachneigung bis max. 10 Grad
Fangmast für HVI light plus Leitung
Höhe gesamt 2200 mm
Der stapelbare Betonsockel (Art.-Nr. 102 010) und die
Unterlegplatte (Art.-Nr. 102 050) sind separat zu bestellen
Werkstoff Stativ: St/tZn
Radius Stativ: 320 mm
Werkstoff Stützrohr: GFK / Al
Länge Stützrohr: 1600 mm
Isolierstrecke: 1230 mm
Länge Fangspitze: 500 mm
Werkstoff Fangspitze: NIRO
Normenbezug: DIN IEC/TS 62561-8 (VDE V 0185-561-8)

Fabrikat: DEHN
Typ: FM D40 L2200 GFK AL V2A DBS R320 STTZN
Art.-Nr.: 819685
oder gleichwertig.

Zertifikate

 

Technische Daten

Höhe 2200 mm
Werkstoff Stativ St/tZn
Radius Stativ 320 mm
Werkstoff Stützrohr GFK / Al
Länge Stützrohr 1600 mm
Länge Fangspitze 500 mm
Werkstoff Fangspitze NIRO
Normenbezug DIN IEC/TS 62561-8 (VDE V 0185-561-8)

Artikel 819685 wurde zum Merkzettel hinzugefügt.

Zum Merkzettel

Artikel 819685 wurde zum Warenkorb hinzugefügt.

Zum Warenkorb

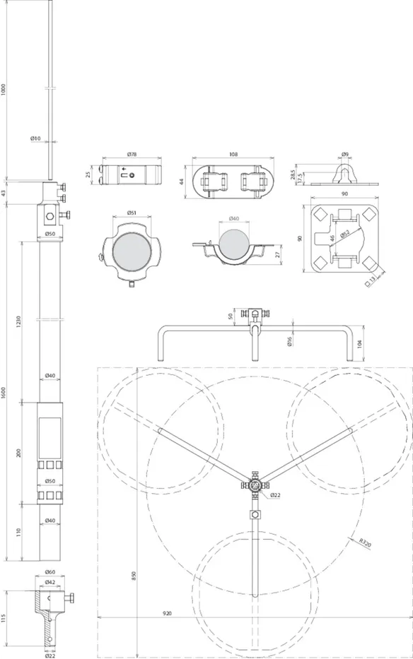
Art.-Nr. 819690 FM D40 L2700 GFK AL V2A DBS R320 STTZN

GTIN 4013364494466, Zolltarifnr. (EU): 85389099, Bruttogewicht: 6.61 kg, VPE: 1.00 Stk.


Abbildungen

Weitere Information

Fangmaste für HVI light plus Leitung auf Flachdächer
komplett mit 4-fach Anschlussplatte für die
HVI light plus Leitung und Befestigungsset zur Montage
der Leitung am Fangmast
Zum Einhalten des Trennungsabstand zu elektrisch
leitenden Teilen nach DIN EN 62305-3 (VDE 0185-305-3)
Isolierstrecke aus glasfaserverstärktem Kunststoff (GFK)
Rohr Ø40 mm
Materialfaktor km = 0,7
Farbe lichtgrau, UV-stabilisiert
Fangmaste dimensioniert nach
Eurocode 1 (DIN EN 1991-1-4 + DIN EN 1991-1-4/NA)
Anpassung an die Dachneigung bis max. 10 Grad
Fangmast für HVI light plus Leitung
Höhe gesamt 2700 mm
Der stapelbare Betonsockel (Art.-Nr. 102 010) und die
Unterlegplatte (Art.-Nr. 102 050) sind separat zu bestellen.
Werkstoff Stativ: St/tZn
Radius Stativ: 320 mm
Werkstoff Stützrohr: GFK / Al
Länge Stützrohr: 1600 mm
Isolierstrecke: 1230 mm
Länge Fangspitze: 1000 mm
Werkstoff Fangspitze: NIRO
Normenbezug: DIN IEC/TS 62561-8 (VDE V 0185-561-8)

Fabrikat: DEHN
Typ: FM D40 L2700 GFK AL V2A DBS R320 STTZN
Art.-Nr.: 819690
oder gleichwertig.

Zertifikate

 

Technische Daten

Höhe 2700 mm
Werkstoff Stativ St/tZn
Radius Stativ 320 mm
Werkstoff Stützrohr GFK / Al
Länge Stützrohr 1600 mm
Länge Fangspitze 1000 mm
Werkstoff Fangspitze NIRO
Normenbezug DIN IEC/TS 62561-8 (VDE V 0185-561-8)

Artikel 819690 wurde zum Merkzettel hinzugefügt.

Zum Merkzettel

Artikel 819690 wurde zum Warenkorb hinzugefügt.

Zum Warenkorb

Fangmast mit Dreibeinstativ groß und Fangspitze

1 Produkt

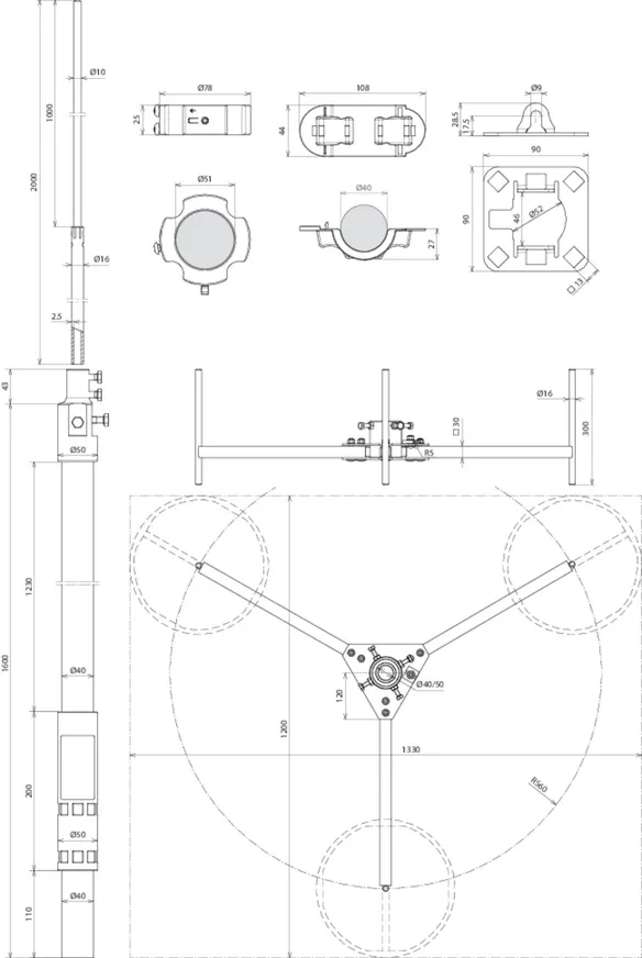
Art.-Nr. 819682 FM D40 L2700 GFK AL V2A DBS R560 STTZN

GTIN 4013364494428, Zolltarifnr. (EU): 85389099, Bruttogewicht: 12.86 kg, VPE: 1.00 Stk.


Abbildungen

Weitere Information

Fangmaste für HVI light plus Leitung auf Flachdächer
komplett mit 4-fach Anschlussplatte für die
HVI light Leitung und Befestigungsset zur Montage
der Leitung am Fangmast.
Zum Einhalten des Trennungsabstand zu elektrisch
leitenden Teilen nach DIN EN 62305-3 (VDE 0185-305-3)
Isolierstrecke aus glasfaserverstärktem Kunststoff (GFK)
Rohr Ø40 mm
Materialfaktor km = 0,7
Farbe lichtgrau, UV-stabilisiert
Die Fangmaste sind nach
Eurocode 1 (DIN EN 1991-1-4 + DIN EN 1991-1-4/NA) für eine
max. Böenwindgeschwindigkeit von 200 km/h dimensioniert.
Anpassung an die Dachneigung bis max. 10 Grad
Fangmast für HVI light plus Leitung
Höhe gesamt 2700 mm
Der stapelbare Betonsockel (Art.-Nr. 102 010) und die
Unterlegplatte (Art.-Nr. 102 050) sind separat zu bestellen.
Werkstoff Stativ: St/tZn
Radius Stativ: 560 mm
Werkstoff Stützrohr: GFK / Al
Länge Stützrohr: 1600 mm
Isolierstrecke: 1230 mm
Länge Fangspitze: 1000 mm
Werkstoff Fangspitze: NIRO
Normenbezug: DIN IEC/TS 62561-8 (VDE V 0185-561-8)

Fabrikat: DEHN
Typ: FM D40 L2700 GFK AL V2A DBS R560 STTZN
Art.-Nr.: 819682
oder gleichwertig.

Zertifikate

 

Technische Daten

Höhe 2700 mm
Werkstoff Stativ St/tZn
Radius Stativ 560 mm
Werkstoff Stützrohr GFK / Al
Länge Stützrohr 1600 mm
Länge Fangspitze 1000 mm
Werkstoff Fangspitze NIRO
Normenbezug DIN IEC/TS 62561-8 (VDE V 0185-561-8)

Artikel 819682 wurde zum Merkzettel hinzugefügt.

Zum Merkzettel

Artikel 819682 wurde zum Warenkorb hinzugefügt.

Zum Warenkorb

Fangmast mit Dreibeinstativ groß und Fangstange

2 Produkte

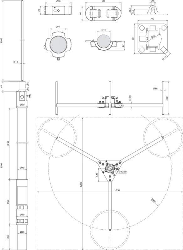
Art.-Nr. 819687 FM D40 L3700 GFK AL DBS R560 STTZN

GTIN 4013364494435, Zolltarifnr. (EU): 85389099, Bruttogewicht: 13.02 kg, VPE: 1.00 Stk.


Abbildungen

Weitere Information

Fangmaste für HVI light plus Leitung auf Flachdächer
komplett mit 4-fach Anschlussplatte für die
HVI light plus Leitung und Befestigungsset zur Montage
der Leitung am Fangmast
Zum Einhalten des Trennungsabstand zu elektrisch
leitenden Teilen nach DIN EN 62305-3 (VDE 0185-305-3)
Isolierstrecke aus glasfaserverstärktem Kunststoff (GFK)
Rohr Ø40 mm
Materialfaktor km = 0,7
Farbe lichtgrau, UV-stabilisiert
Die Fangmaste sind nach
Eurocode 1 (DIN EN 1991-1-4 + DIN EN 1991-1-4/NA) für eine
max. Böenwindgeschwindigkeit von 159 km/h dimensioniert.
Anpassung an die Dachneigung bis max. 10 Grad
Fangmast 40 für HVI light plus Leitung
Höhe gesamt 3700 mm
Der stapelbare Betonsockel (Art.-Nr. 102 010) und die
Unterlegplatte (Art.-Nr. 102 050) sind separat zu bestellen
Werkstoff Stativ: St/tZn
Radius Stativ: 560 mm
Werkstoff Stützrohr: GFK / Al
Länge Stützrohr: 1600 mm
Isolierstrecke: 1230 mm
Länge Fangstange: 2000 mm
Werkstoff Fangstange: AlMgSi
Normenbezug: DIN IEC/TS 62561-8 (VDE V 0185-561-8)

Fabrikat: DEHN
Typ: FM D40 L3700 GFK AL DBS R560 STTZN
Art.-Nr.: 819687
oder gleichwertig.

Zertifikate

 

Technische Daten

Höhe 3700 mm
Werkstoff Stativ St/tZn
Radius Stativ 560 mm
Werkstoff Stützrohr GFK / Al
Länge Stützrohr 1600 mm
Länge Fangstange 2000 mm
Werkstoff Fangstange AlMgSi
Normenbezug DIN IEC/TS 62561-8 (VDE V 0185-561-8)

Artikel 819687 wurde zum Merkzettel hinzugefügt.

Zum Merkzettel

Artikel 819687 wurde zum Warenkorb hinzugefügt.

Zum Warenkorb

Art.-Nr. 819680 FM D40 L4700 GFK AL DBS R560 STTZN

GTIN 4013364494442, Zolltarifnr. (EU): 85389099, Bruttogewicht: 13.06 kg, VPE: 1.00 Stk.


Abbildungen

Weitere Information

Fangmaste für HVI light plus Leitung auf Flachdächer
komplett mit 4-fach Anschlussplatte für die
HVI light plus Leitung und Befestigungsset zur Montage
der Leitung am Fangmast
Zum Einhalten des Trennungsabstand zu elektrisch
leitenden Teilen nach DIN EN 62305-3 (VDE 0185-305-3)
Isolierstrecke aus glasfaserverstärktem Kunststoff (GFK)
Rohr Ø40 mm
Materialfaktor km = 0,7
Farbe lichtgrau, UV-stabilisiert
Die Fangmaste sind nach
Eurocode 1 (DIN EN 1991-1-4 + DIN EN 1991-1-4/NA) für eine
max. Böenwindgeschwindigkeit von 99 km/h dimensioniert.
Anpassung an die Dachneigung bis max. 10 Grad
Fangmast 40 für HVI light plus Leitung
Höhe gesamt 4700 mm
Der stapelbare Betonsockel (Art.-Nr. 102 010) und die
Unterlegplatte (Art.-Nr. 102 050) sind separat zu bestellen.
Werkstoff Stativ: St/tZn
Radius Stativ: 560 mm
Werkstoff Stützrohr: GFK / Al
Länge Stützrohr: 1600 mm
Isolierstrecke: 1230 mm
Länge Fangstange: 3000 mm
Werkstoff Fangstange: AlMgSi
Normenbezug: DIN IEC/TS 62561-8 (VDE V 0185-561-8)

Fabrikat: DEHN
Typ: FM D40 L4700 GFK AL DBS R560 STTZN
Art.-Nr.: 819680
oder gleichwertig.

Zertifikate

 

Technische Daten

Höhe 4700 mm
Werkstoff Stativ St/tZn
Radius Stativ 560 mm
Werkstoff Stützrohr GFK / Al
Länge Stützrohr 1600 mm
Länge Fangstange 3000 mm
Werkstoff Fangstange AlMgSi
Normenbezug DIN IEC/TS 62561-8 (VDE V 0185-561-8)

Artikel 819680 wurde zum Merkzettel hinzugefügt.

Zum Merkzettel

Artikel 819680 wurde zum Warenkorb hinzugefügt.

Zum Warenkorb

nach oben