Ihre Services im Dashboard..
Registriert nutzen Sie das komplette Angebot.

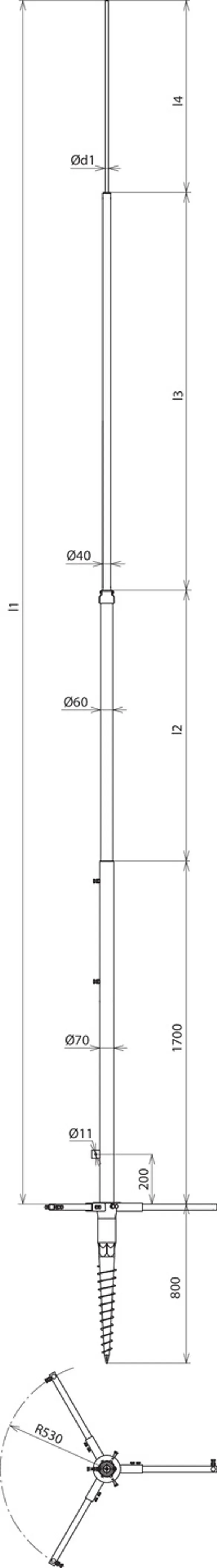
Tele-Blitzschutzmast mit Schraubfundament

Fangmast für den Schutz vor direktem Blitzeinschlag bei besonderen Anlagen z. B. Biogas-Anlagen, PV-Anlagen auf Freiflächen.
Die Maste werden im Schraubfundament errichtet.
Es sind keine Grabungsarbeiten bzw. Gründungsarbeiten notwendig.
Das Schraubfundament wird ohne besonderes Vorbereiten einfach in den gewachsenen Boden geschraubt und mit Tiefenerdern zusätzlich fixiert.

Zur zusätzlichen Fixierung werden pro Schraubfundament 3 Stück Tiefenerder Ø20 mm Länge 1500 mm (Art.-Nr. 620 151) benötigt. Diese sind separat zu bestellen.

Die Fangmaste sind nach Eurocode 1 (DIN EN 1991-1-4 + DIN EN 1991-1-4/NA) dimensioniert.
Diesen Berechnungen liegt ein Pressdruck von 0,02 kN/cm2 des gewachsenen Bodens zu Grunde (z. B. Lehmböden, Sand-, Kiesböden mitteldicht).

Bestandteile:
– Fangmast aus St/tZn und Al verjüngt Ø70 / 60 / 40 mm
– Fangstange aus Al Ø22/16/10 mm Länge 2500 mm oder NIRO Ø10 mm Länge 1000 mm
– Schraubfundament aus St/tZn Länge 800 mm mit Streben der Länge 530 mm und Arretierungsschrauben M10 mit Kontermutter
– Erdanschlusslasche Bohrung Ø11 mm

Vorteile:
– Leichtes Aufstellen durch verjüngte Bauweise aus St/tZn und Aluminium
– Bei Bedarf kann der Fangmast einfach aus dem Schraubfundament entnommen und umgelegt werden

6 Produkte

Art.-Nr. 103121 TBM 6M SCFU STTZN AL

GTIN 4013364112711, Zolltarifnr. (EU): 85389099, Bruttogewicht: 33.00 kg, VPE: 1.00 Stk.


Abbildungen

Weitere Information

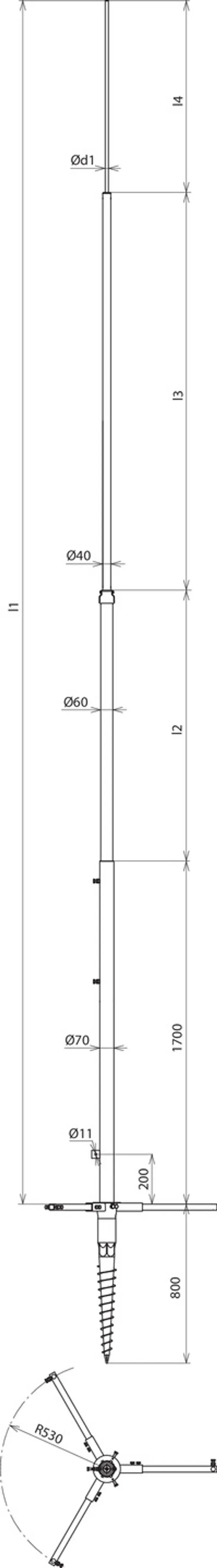
Tele-Blitzschutzmaste mit Schraubfundament Höhe 6000mm
Tele-Blitzschutzmaste mit Schraubfundament
für den Schutz vor direktem Blitzeinschlag bei
besonderen Anlagen z.B. Biogas-Anlagen, PV-Anlagen auf Freiflächen.
Es sind keine Grabungsarbeiten bzw. Gründungsarbeiten notwendig.
Das Schraubfundament wird ohne besonderes
Vorbereiten einfach in den gewachsenen Boden
geschraubt und mit Tiefenerdern zusätzlich fixiert.
Zur zusätzlichen Fixierung werden pro
Schraubfundament 3 Stück Tiefenerder Ø 20 mm Länge
1500 mm (Art.-Nr. 620 151) benötigt (sind separat zu bestellen).
Die Tele-Blitzschutzmaste mit Schraubfundament sind nach
Eurocode 1 (DIN EN 1991-1-4 + DIN EN 1991-1-4/NA) für eine
max. Böenwindgeschwindigkeit von 229 km/h dimensioniert.
Werkstoff: St/tZn / Al / NIRO
Höhe über Flur: 6000 mm
Normenbezug: DIN EN 62561-(1+2)

Fabrikat: DEHN
Typ: TBM 6M SCFU STTZN AL
Art.-Nr.: 103121
oder gleichwertig.

Zertifikate

 

Technische Daten

Werkstoff St/tZn / Al / NIRO
Höhe über Flur (l1) 6000 mm
Max. Böenwindgeschwindigkeit 229 km/h
Normenbezug DIN EN 62561-(1+2)

Artikel 103121 wurde zum Merkzettel hinzugefügt.

Zum Merkzettel

Artikel 103121 wurde zum Warenkorb hinzugefügt.

Zum Warenkorb

Art.-Nr. 103122 TBM 7M SCFU STTZN AL

GTIN 4013364112728, Zolltarifnr. (EU): 85389099, Bruttogewicht: 33.20 kg, VPE: 1.00 Stk.


Abbildungen

Weitere Information

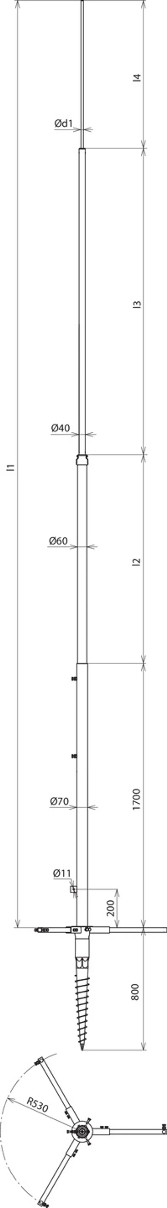
Tele-Blitzschutzmaste mit Schraubfundament Höhe 7000mm
Tele-Blitzschutzmaste mit Schraubfundament
für den Schutz vor direktem Blitzeinschlag bei
besonderen Anlagen z.B. Biogas-Anlagen, PV-Anlagen auf Freiflächen.
Es sind keine Grabungsarbeiten bzw. Gründungsarbeiten notwendig.
Das Schraubfundament wird ohne besonderes
Vorbereiten einfach in den gewachsenen Boden
geschraubt und mit Tiefenerdern zusätzlich fixiert.
Zur zusätzlichen Fixierung werden pro
Schraubfundament 3 Stück Tiefenerder Ø 20 mm Länge
1500 mm (Art.-Nr. 620 151) benötigt (sind separat zu bestellen).
Die Tele-Blitzschutzmaste mit Schraubfundament sind nach
Eurocode 1 (DIN EN 1991-1-4 + DIN EN 1991-1-4/NA) für eine
max. Böenwindgeschwindigkeit von 185 km/h dimensioniert.
Werkstoff: St/tZn / Al
Höhe über Flur: 7000 mm
Normenbezug: DIN EN 62561-(1+2)

Fabrikat: DEHN
Typ: TBM 7M SCFU STTZN AL
Art.-Nr.: 103122
oder gleichwertig.

Zertifikate

 

Technische Daten

Werkstoff St/tZn / Al
Höhe über Flur (l1) 7000 mm
Max. Böenwindgeschwindigkeit 185 km/h
Normenbezug DIN EN 62561-(1+2)

Artikel 103122 wurde zum Merkzettel hinzugefügt.

Zum Merkzettel

Artikel 103122 wurde zum Warenkorb hinzugefügt.

Zum Warenkorb

Art.-Nr. 103123 TBM 8M SCFU STTZN AL

GTIN 4013364112735, Zolltarifnr. (EU): 85389099, Bruttogewicht: 37.60 kg, VPE: 1.00 Stk.


Abbildungen

Weitere Information

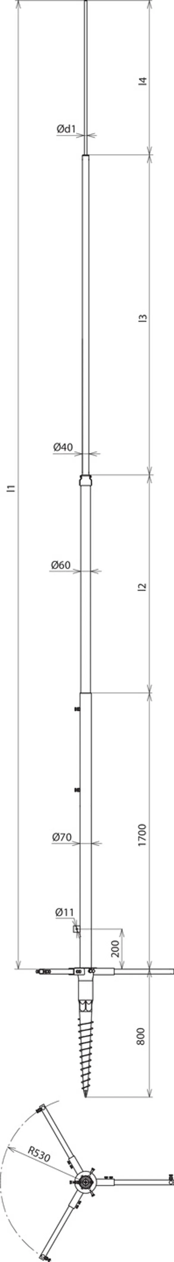
Tele-Blitzschutzmaste mit Schraubfundament Höhe 8000mm
Tele-Blitzschutzmaste mit Schraubfundament
für den Schutz vor direktem Blitzeinschlag bei
besonderen Anlagen z.B. Biogas-Anlagen, PV-Anlagen auf Freiflächen.
Es sind keine Grabungsarbeiten bzw. Gründungsarbeiten notwendig.
Das Schraubfundament wird ohne besonderes
Vorbereiten einfach in den gewachsenen Boden
geschraubt und mit Tiefenerdern zusätzlich fixiert.
Zur zusätzlichen Fixierung werden pro
Schraubfundament 3 Stück Tiefenerder Ø 20 mm Länge
1500 mm (Art.-Nr. 620 151) benötigt (sind separat zu bestellen).
Die Tele-Blitzschutzmaste mit Schraubfundament sind nach
Eurocode 1 (DIN EN 1991-1-4 + DIN EN 1991-1-4/NA) für eine
max. Böenwindgeschwindigkeit von 177 km/h dimensioniert.
Werkstoff: St/tZn / Al / NIRO
Höhe über Flur: 8000 mm
Normenbezug: DIN EN 62561-(1+2)

Fabrikat: DEHN
Typ: TBM 8M SCFU STTZN AL
Art.-Nr.: 103123
oder gleichwertig.

Zertifikate

 

Technische Daten

Werkstoff St/tZn / Al / NIRO
Höhe über Flur (l1) 8000 mm
Max. Böenwindgeschwindigkeit 177 km/h
Normenbezug DIN EN 62561-(1+2)

Artikel 103123 wurde zum Merkzettel hinzugefügt.

Zum Merkzettel

Artikel 103123 wurde zum Warenkorb hinzugefügt.

Zum Warenkorb

Art.-Nr. 103124 TBM 9M SCFU STTZN AL

GTIN 4013364112742, Zolltarifnr. (EU): 85389099, Bruttogewicht: 37.60 kg, VPE: 1.00 Stk.


Abbildungen

Weitere Information

Tele-Blitzschutzmaste mit Schraubfundament Höhe 9000mm
Tele-Blitzschutzmaste mit Schraubfundament
für den Schutz vor direktem Blitzeinschlag bei
besonderen Anlagen z.B. Biogas-Anlagen, PV-Anlagen auf Freiflächen.
Es sind keine Grabungsarbeiten bzw. Gründungsarbeiten notwendig.
Das Schraubfundament wird ohne besonderes
Vorbereiten einfach in den gewachsenen Boden
geschraubt und mit Tiefenerdern zusätzlich fixiert.
Zur zusätzlichen Fixierung werden pro
Schraubfundament 3 Stück Tiefenerder Ø 20 mm Länge
1500 mm (Art.-Nr. 620 151) benötigt (sind separat zu bestellen).
Die Tele-Blitzschutzmaste mit Schraubfundament sind nach
Eurocode 1 (DIN EN 1991-1-4 + DIN EN 1991-1-4/NA) für eine
max. Böenwindgeschwindigkeit von 159 km/h dimensioniert.
Werkstoff: St/tZn / Al
Höhe über Flur: 9000 mm
Normenbezug: DIN EN 62561-(1+2)

Fabrikat: DEHN
Typ: TBM 9M SCFU STTZN AL
Art.-Nr.: 103124
oder gleichwertig.

Zertifikate

 

Technische Daten

Werkstoff St/tZn / Al
Höhe über Flur (l1) 9000 mm
Max. Böenwindgeschwindigkeit 159 km/h
Normenbezug DIN EN 62561-(1+2)

Artikel 103124 wurde zum Merkzettel hinzugefügt.

Zum Merkzettel

Artikel 103124 wurde zum Warenkorb hinzugefügt.

Zum Warenkorb

Art.-Nr. 103125 TBM 10M SCFU STTZN AL

GTIN 4013364112759, Zolltarifnr. (EU): 85389099, Bruttogewicht: 42.20 kg, VPE: 1.00 Stk.


Abbildungen

Weitere Information

Tele-Blitzschutzmaste mit Schraubfundament Höhe 10000mm
Tele-Blitzschutzmaste mit Schraubfundament
für den Schutz vor direktem Blitzeinschlag bei
besonderen Anlagen z.B. Biogas-Anlagen, PV-Anlagen auf Freiflächen.
Es sind keine Grabungsarbeiten bzw. Gründungsarbeiten notwendig.
Das Schraubfundament wird ohne besonderes
Vorbereiten einfach in den gewachsenen Boden
geschraubt und mit Tiefenerdern zusätzlich fixiert.
Zur zusätzlichen Fixierung werden pro
Schraubfundament 3 Stück Tiefenerder Ø 20 mm Länge
1500 mm (Art.-Nr. 620 151) benötigt (sind separat zu bestellen).
Die Tele-Blitzschutzmaste mit Schraubfundament sind nach
Eurocode 1 (DIN EN 1991-1-4 + DIN EN 1991-1-4/NA)
für eine max. Böenwindgeschwindigkeit von 116 km/h dimensioniert.
Werkstoff: St/tZn / Al / NIRO
Höhe über Flur: 10000 mm
Normenbezug: DIN EN 62561-(1+2)

Fabrikat: DEHN
Typ: TBM 10M SCFU STTZN AL
Art.-Nr.: 103125
oder gleichwertig.

Zertifikate

 

Technische Daten

Werkstoff St/tZn / Al / NIRO
Höhe über Flur (l1) 10000 mm
Max. Böenwindgeschwindigkeit 116 km/h
Normenbezug DIN EN 62561-(1+2)

Artikel 103125 wurde zum Merkzettel hinzugefügt.

Zum Merkzettel

Artikel 103125 wurde zum Warenkorb hinzugefügt.

Zum Warenkorb

Art.-Nr. 103126 TBM 11M SCFU STTZN AL

GTIN 4013364112841, Zolltarifnr. (EU): 85389099, Bruttogewicht: 42.40 kg, VPE: 1.00 Stk.


Abbildungen

Weitere Information

Tele-Blitzschutzmaste mit Schraubfundament Höhe 11000mm
Tele-Blitzschutzmaste mit Schraubfundament
für den Schutz vor direktem Blitzeinschlag bei
besonderen Anlagen z.B. Biogas-Anlagen, PV-Anlagen auf Freiflächen.
Es sind keine Grabungsarbeiten bzw. Gründungsarbeiten notwendig.
Das Schraubfundament wird ohne besonderes
Vorbereiten einfach in den gewachsenen Boden
geschraubt und mit Tiefenerdern zusätzlich fixiert.
Zur zusätzlichen Fixierung werden pro
Schraubfundament 3 Stück Tiefenerder Ø 20 mm Länge
1500 mm (Art.-Nr. 620 151) benötigt (sind separat zu bestellen).
Die Tele-Blitzschutzmaste mit Schraubfundament sind nach
Eurocode 1 (DIN EN 1991-1-4 + DIN EN 1991-1-4/NA)
für eine max. Böenwindgeschwindigkeit von 112 km/h dimensioniert.
Werkstoff: St/tZn / Al
Höhe über Flur: 11000 mm
Normenbezug: DIN EN 62561-(1+2)

Fabrikat: DEHN
Typ: TBM 11M SCFU STTZN AL
Art.-Nr.: 103126
oder gleichwertig.

Zertifikate

 

Technische Daten

Werkstoff St/tZn / Al
Höhe über Flur (l1) 11000 mm
Max. Böenwindgeschwindigkeit 112 km/h
Normenbezug DIN EN 62561-(1+2)

Artikel 103126 wurde zum Merkzettel hinzugefügt.

Zum Merkzettel

Artikel 103126 wurde zum Warenkorb hinzugefügt.

Zum Warenkorb

nach oben